<style draggable="hH6NbS"><noframes date-time="iF5Jf"><code dropzone="AhDk2Q"></code>
MK体育2025版 - 24小时咨询电话
027-82411111
首页 > 找设计师 > 彭军设计师户型解析
"MK体育" 户型解析
万科四季花城140㎡三居室中式古韵雅苑户型解析
MK体育官网入口 - 三居室
"MK体育注册入口" 140m²
"MK体育官网" 中式

    案例简介:传统中式风多给人以沉稳,大气浑厚感,因此多受老年群体的偏爱,而本案例的业主作为退休人士就对中国传统文化情有独钟,因此设计师在与业主交流后敲定以中式风装饰空间,大面积的核桃木搭配上简约优雅的洁净白,在平衡空间视觉效果的同时给人以清新的悠然古韵美感 MK体育


    户型解析:




    万科四季花城这套140㎡的三居室住宅整体结构近似正方形,因此设计师在进行空间规划设计的时候就将客厅作为核心店,其他功能区域则围绕客厅展开设计,以确保整体空间的和谐感 MK体育app下载,由于房屋面积不算宽敞,因此设计师在进行装饰设计的时候舍弃了大量中式造型设计,而是借助色彩的搭配与传统韵味画来展示空间的清新古韵感。


    客厅:




    简约木质仿古家具与现代时尚感浓烈的大理石背景墙之间的碰撞 MK体育官网,呈现了宜古宜今的独特时尚美。


    次卧:




    大面积的白色点缀山素雅的山水画挂画 MK体育手机版,强调清幽雅致的艺术氛围。


    卫生间:


客卫.jpg

    透明玻璃通透性强 MK体育安卓版,既可以起到干湿分离作用又不会显得过于生硬,黑色镶边处理则为空间增添结构感。


新华尚水湾137㎡三居室极简个性家居户型解析
"MK体育集团官网" 三居室
137m²
极简 (MK体育2025版)

    案例简介:其实对于绝大多数人而言,家不需要花里胡哨的设计,只需要能够给人一种踏实的归属感就足够了,也因此本案例的设计师在与业主进行沟通之后,舍弃了各种华丽的设计,借助最为常见的灰白配色营造一种温馨舒适感,同时借助简单的墙面设计,在不会显得过于刻意的前提下装饰点缀空间 MK体育ios版,强调一种简约而又不简单的高级洁净美。


    户型解析:


新华尚水湾平面布局图.jpg

    新华尚水湾这套137㎡的三居室住宅户型规整且采光好,原有功能分区上的劣势在于走廊过于狭长,容易给人以闭塞感,因此设计师充分利用户型优势,借助双阳台设计引进自然光 MK体育最新版本,而走廊处则借用吊灯,墙壁等设计提升丰富感,为便利主人日常起居生活,设计师在主卧区域改造出货一个迷你卫浴空间,以提升生活的私密感。


    客厅:


客厅.jpg

    灰色墙面搭配上以色块组合而成的艺术挂画,简约而又不失现代时尚氛围 MK体育平台登录,大面积的灰色的配色浅褐色,给人以丰富的视觉效果。


    餐厅:




    就餐区域配色清新又柔和,木色与白色之间的组合营造空间温馨静谧感 MK体育注册入口,墙面圆形艺术挂件简约清新而又不失艺术感。


    书房:


书房.jpg

    褐色与白色构成的书柜艺术感十足 MK体育官网入口,搭配上简单的圆形摆件,展示主人独特审美与品位。


    厨房:

厨房.jpg

    大理石台面赋予空间沉稳大气感,半开放式设计让厨房空间更显宽敞大气。


同馨花园140㎡简约风三居室优雅住宅户型解析户型解析
三居室
140m²
现代简约

    案例简介:在家装设计中有一种设计手法叫做留白,这指的是借助大面积的空白营造空间的韵味感,给人以无限遐想,这是简约风中最为常见的设计手法,能够让人在家居空间中更好的放空自己。而本案例的业主不喜欢设计繁琐的家居空间,希望通过最为简洁的元素打造出干净舒适的休憩空间,因此最终设计师为业主敲定了带有留白设计的简约风软装,通过合理的点缀搭配大面积留白来营造一种独特的优雅高级感。


    户型解析:



    同馨花园这套140㎡的三居室虽然原有的户型结构较为平整四方,且已经完成了基本的分区规划,但是由于不能满足业主日常起居使用需求,因此设计师根据业主个人使用需求将内部次卧区域直接打通,其中一部分向主卧延伸打造成衣帽间,而另外一部分则用于扩大另外一个次卧的面积,以提升生活品质感。厨房区域的墙面则直接打通,将厨房改造成为一个开放式设计,再借助软隔断融入就餐区域,提升空间的利用率。


    客厅:


客厅.jpg

 

   摒弃各种花里胡哨的设计,借助大理石材质本身的质感提升空间品味。嵌入式背景墙设计既可以节省一定室内空间,又有效保障室内时尚感。


    书房:

书房.jpg

    书房面积较小,因此仅摆放了简单的桌椅,再搭配上悬挂式收纳柜,满足日常办公、阅读需求。


    卧室




    卧室背景墙借用线条抒发空间简约洁净氛围,舒适柔软的床具搭配上简洁大方的设计,让人在素雅洁净中更好享受生活的宁静。


    卫生间:


客卫.jpg

    卫生间借用透明玻璃门进行干湿分离,有效提升卫浴环境品质感。


锦江国际140㎡简美风三居室清新家居户型解析
三居室
140m² (MK体育官网)
简美 (MK体育最新版本)

    案例简介:本案例的业主追求一种返璞归真的清新自然式生活,在喧嚣都市打拼久了的他希望能够拥有一个简约清新的住宅,他希望设计师能够放弃各类繁琐且花里胡哨的装饰设计,利用最为简洁的元素与色彩为自己打造出一座梦想的心灵休憩所。在与业主进行深入交流后,设计师为业主选择了简美式风作为装修主基调,通过清新的色彩来营造古朴洁净的自然美。


    户型解析:


    锦江国际这套三居室的140㎡的住宅原有的户型结构并不算平整,存在一定的斜角空间,因此需要设计师将空间进行更加合理的利用,避免斜角带来的视觉压迫感。而由于业主喜爱阅读及高品质的生活,因此设计师将次卧改造成一个书房,同时借助收缩式的家具设计,满足客人来访时的居住使用需求。


    客厅:




    大面积的白色搭配上细节处的线条处理,简约耐看而又不失优雅高级格调。


    书房:


书房.jpg

    大面积的淡蓝色点缀上艺术照片墙,简约而又不失去生活气息,白色办公桌则与客厅色彩形成呼应强调。


    卧室:






    休憩空间使用与房屋整体装修一致的白色,强调功能空间之间的衔接感,再搭配以少量的藕粉色,营造温馨静谧感。


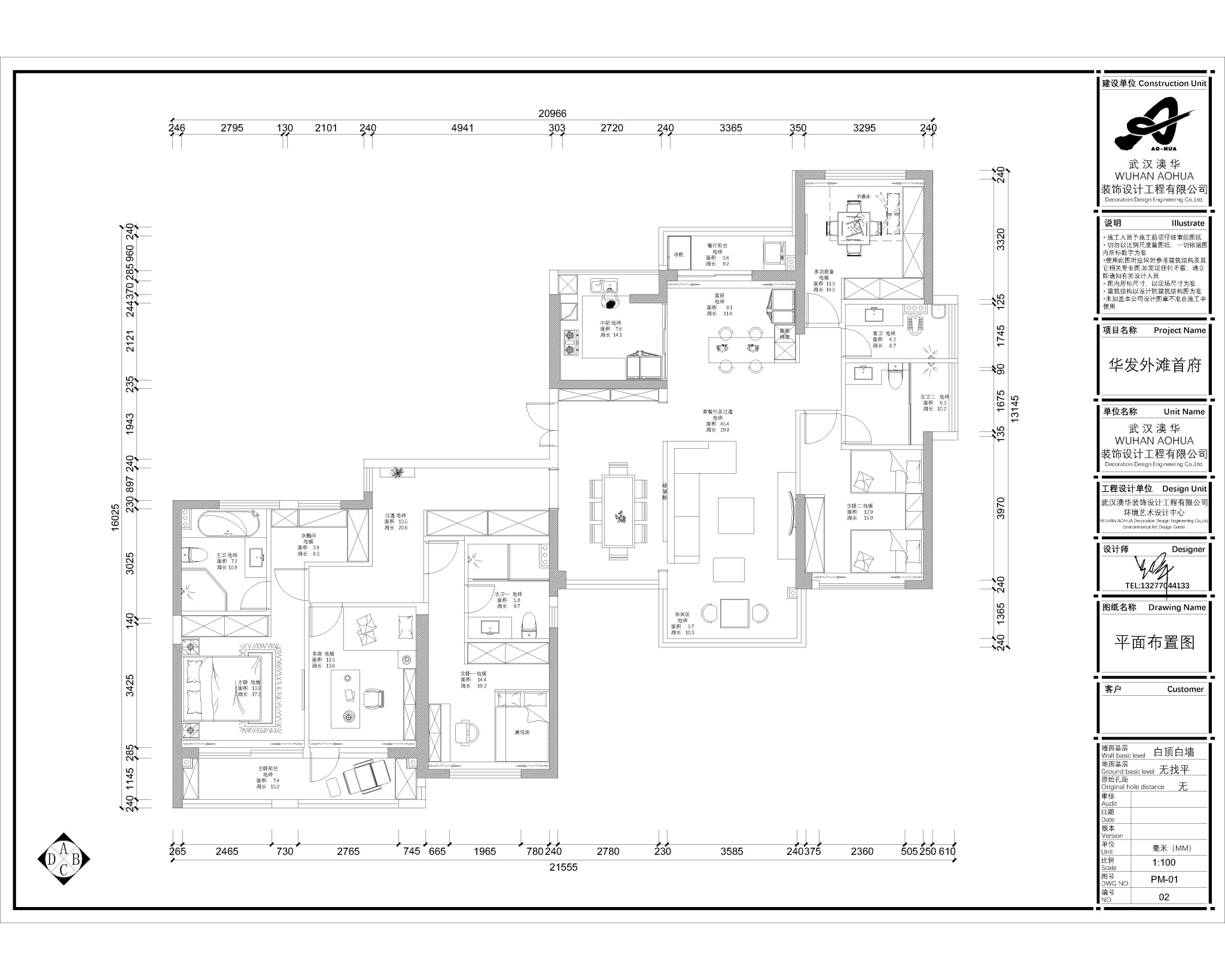
华发外滩首府241㎡五居室简中风高雅别院户型解析
大平层 (MK体育app下载)
"MK体育官网" 241m²
中式

    案例简介:本案例主人公作为高阶级白领,向往美好而又精致的城市生活,对于房屋的装修也有着更有品味的追求。设计师结合业主的品味、工作以及生活习惯,选择了相对比较儒雅舒适的简中式风进行软装,通过引入各类复古清新的古韵元素强调空间的清新自然之美,让业主能够在结束一天忙碌生活之后,尽情享受高雅舒适的休憩生活。


    户型解析:



 

   华发外滩首府这套五居室的住宅面积约为241㎡,整体户型结构相对比较少见,简单的一面墙体将两个相对比较独立的大空间连接在一起,而本次的设计难点就在于如何将这两个相对独立的大空间进行合理的规划设计,避免空间出现违法感与割裂感。设计师则直接将两个独立的大空间进行简单的动静分隔,将活动区域、会客区域与休憩空间借助户型的天然隔断进行分隔,有效提升室内私密性与格调感。


    客厅:




    客厅沙发背景墙采用靓丽的白色,提升空间亮度的同时奠定轻盈舒适氛围感。


    卧室:


6.jpg

    卧室区域以清新的核桃木色作为主基调色,加以大理石材质背景墙,让空间更显静谧高级格调。


    卫生间:


主卫.jpg

    卫生间区域被灰色暗纹瓷砖所包围,搭配以玻璃透明隔断们,给人精致优雅格调感。


彭军
主任设计师
从业年限 : 2008
擅长风格 : 现代简约,轻奢,法式,美式,新中式
设计案例 : 华发中央首府,华发公园首府,福星惠誉,华发外滩首府,华发都荟天地
预约数量 : 152
找TA设计
"MK体育集团官网" 算一算我家装修需要多少钱
    • 张女士
      132****178
      200m²
    • 成先生
      134****4856
      83m²
    • 董先生
      137****2569
      95m²
    • 成先生
      133****7485
      130m²
    • 李先生
      150****4475
      220m²
    • 张先生
      139****5050
      187m²
    • 王女士
      178****4563
      168m²
    预约设计师
    姓名*
    楼盘*
    电话*
    *为了您的权益, 您的隐私将严格保密
    MK体育官网 - 预约成功
    您已报名成功, 稍后会有客服人员联系您。 您的隐私将被严格保密。
    关注二维码了解更多装修知识
    联系我们
    "MK体育安卓版" 装修咨询电话 : 027-82411111
    "MK体育" 售后服务电话 : 027-82866788
    公司地址 : 武汉市江岸区澳门路232号金冠大厦
    关于我们
    友情链接 :
      MK体育 页面版权所有 yezi7357.cn

      算一算,您家装修需要花多少钱?

      知精准报价 避装修深坑

      01/03

      选择您喜欢的风格 (MK体育2025版)

      • 现代轻奢

      • 现代美式

      • 北欧

      • 新中式

      • 欧式

      • 其他

      算一算,您家装修要花多少钱?

      知精准报价 避装修深坑

      02/03

      选择房屋面积区间

      • 80-100㎡
      • 100-140㎡
      • 140-200㎡
      • 200-300㎡
      • 300㎡以上

      03/03

      您的户型

      • 两居室

      • 三居室

      • 四居室

      • 五居室

      • 六居室

      "MK体育2025版" 算一算,您家装修要花多少钱?

      知精准报价 避装修深坑

      0%

      稍等片刻,您的报价正在生中......

      "MK体育2025版" 算一算,您家装修要花多少钱?

      知精准报价 避装修深坑

      MK体育注册入口 - 您的完整报价已经生成

      报名成功享抢订优惠名额 (MK体育2025版)

      每日仅限前10名用户