案例简介:其实对于绝大多数人而言,家不需要花里胡哨的设计,只需要能够给人一种踏实的归属感就足够了,也因此本案例的设计师在与业主进行沟通之后,舍弃了各种华丽的设计,借助最为常见的灰白配色营造一种温馨舒适感,同时借助简单的墙面设计 MK体育,在不会显得过于刻意的前提下装饰点缀空间,强调一种简约而又不简单的高级洁净美。
户型解析:

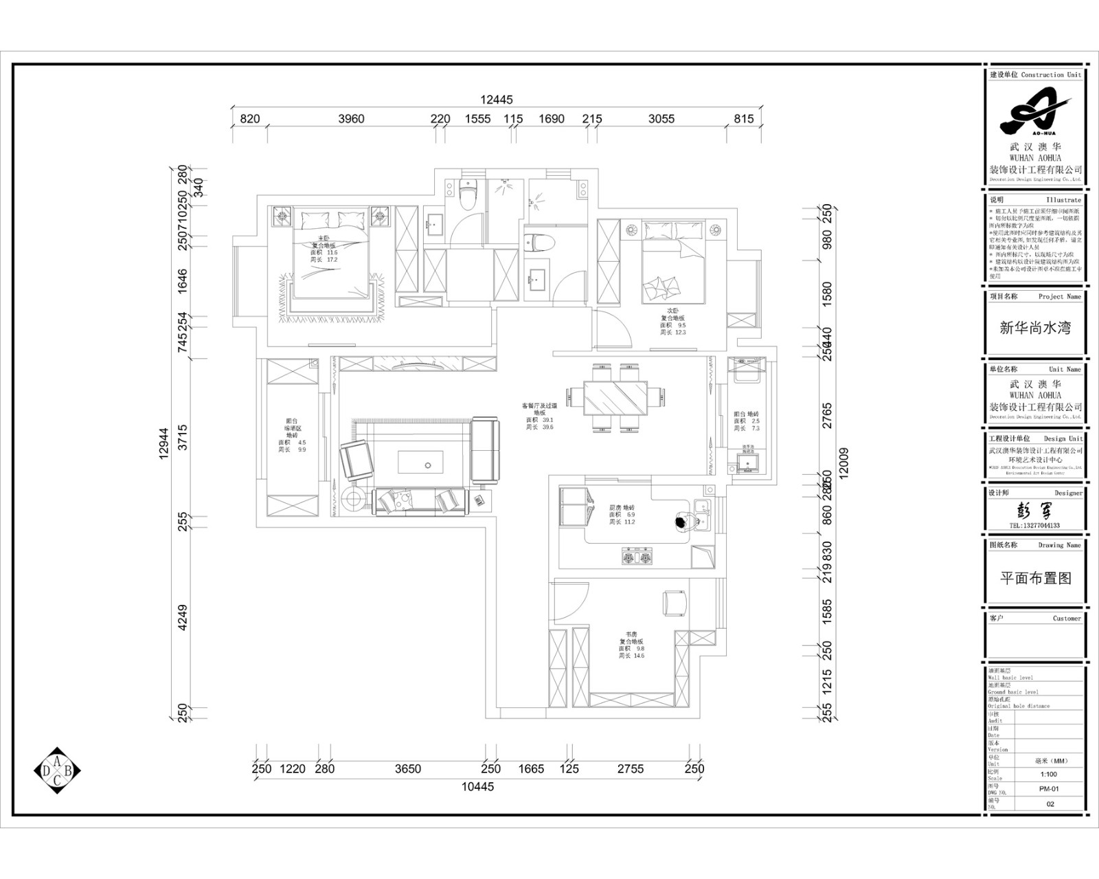
新华尚水湾这套137㎡的三居室住宅户型规整且采光好,原有功能分区上的劣势在于走廊过于狭长,容易给人以闭塞感,因此设计师充分利用户型优势,借助双阳台设计引进自然光,而走廊处则借用吊灯,墙壁等设计提升丰富感,为便利主人日常起居生活,设计师在主卧区域改造出货一个迷你卫浴空间 MK体育app下载,以提升生活的私密感。
客厅:

灰色墙面搭配上以色块组合而成的艺术挂画,简约而又不失现代时尚氛围,大面积的灰色的配色浅褐色,给人以丰富的视觉效果 MK体育官网。
餐厅:


就餐区域配色清新又柔和,木色与白色之间的组合营造空间温馨静谧感 MK体育手机版,墙面圆形艺术挂件简约清新而又不失艺术感。
书房:

褐色与白色构成的书柜艺术感十足,搭配上简单的圆形摆件 MK体育安卓版,展示主人独特审美与品位。
厨房:

大理石台面赋予空间沉稳大气感,半开放式设计让厨房空间更显宽敞大气 MK体育ios版。
知精准报价 避装修深坑
选择您喜欢的风格
现代轻奢
现代美式
北欧
新中式
欧式
其他
知精准报价 避装修深坑 (MK体育2025版)
选择房屋面积区间
您的户型
两居室
三居室
四居室
五居室
六居室
知精准报价 避装修深坑
稍等片刻,您的报价正在生中......
知精准报价 避装修深坑
每日仅限前10名用户