案例简介:本案例的业主追求一种返璞归真的清新自然式生活,在喧嚣都市打拼久了的他希望能够拥有一个简约清新的住宅,他希望设计师能够放弃各类繁琐且花里胡哨的装饰设计,利用最为简洁的元素与色彩为自己打造出一座梦想的心灵休憩所 MK体育,在与业主进行深入交流后,设计师为业主选择了简美式风作为装修主基调,通过清新的色彩来营造古朴洁净的自然美。
户型解析:


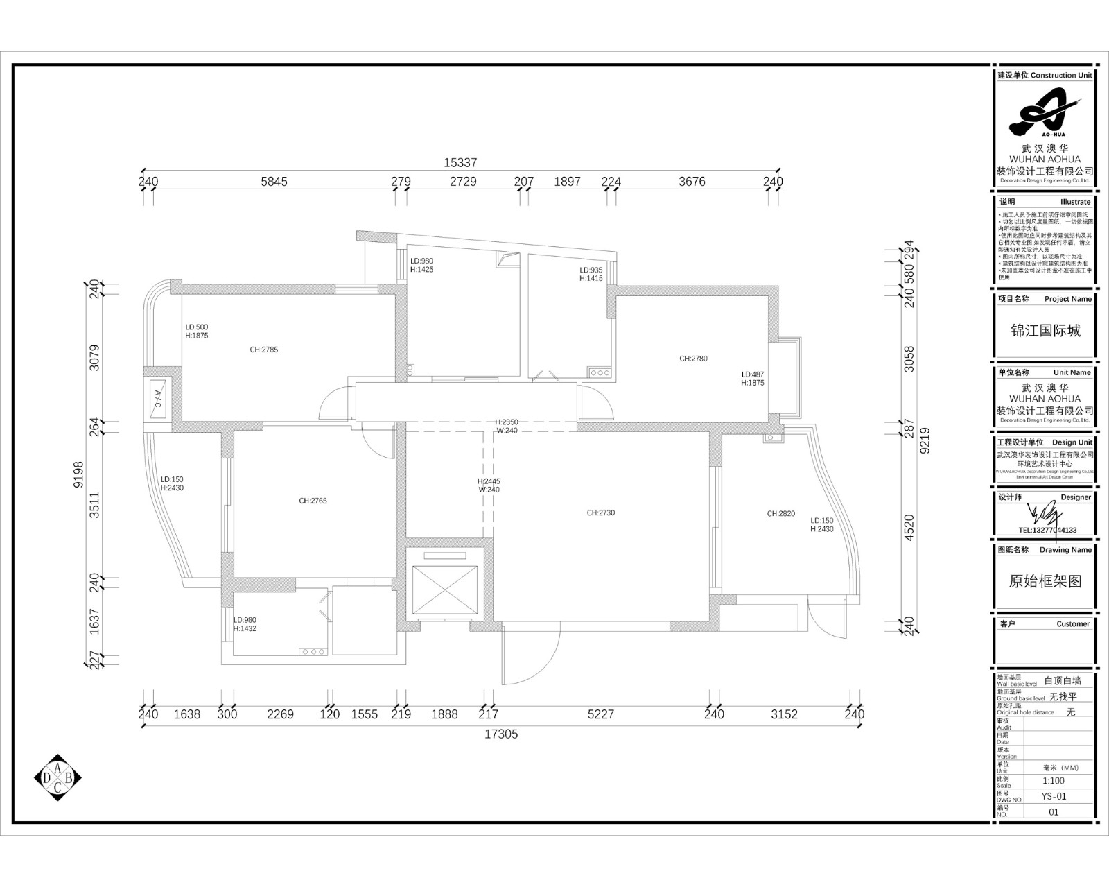
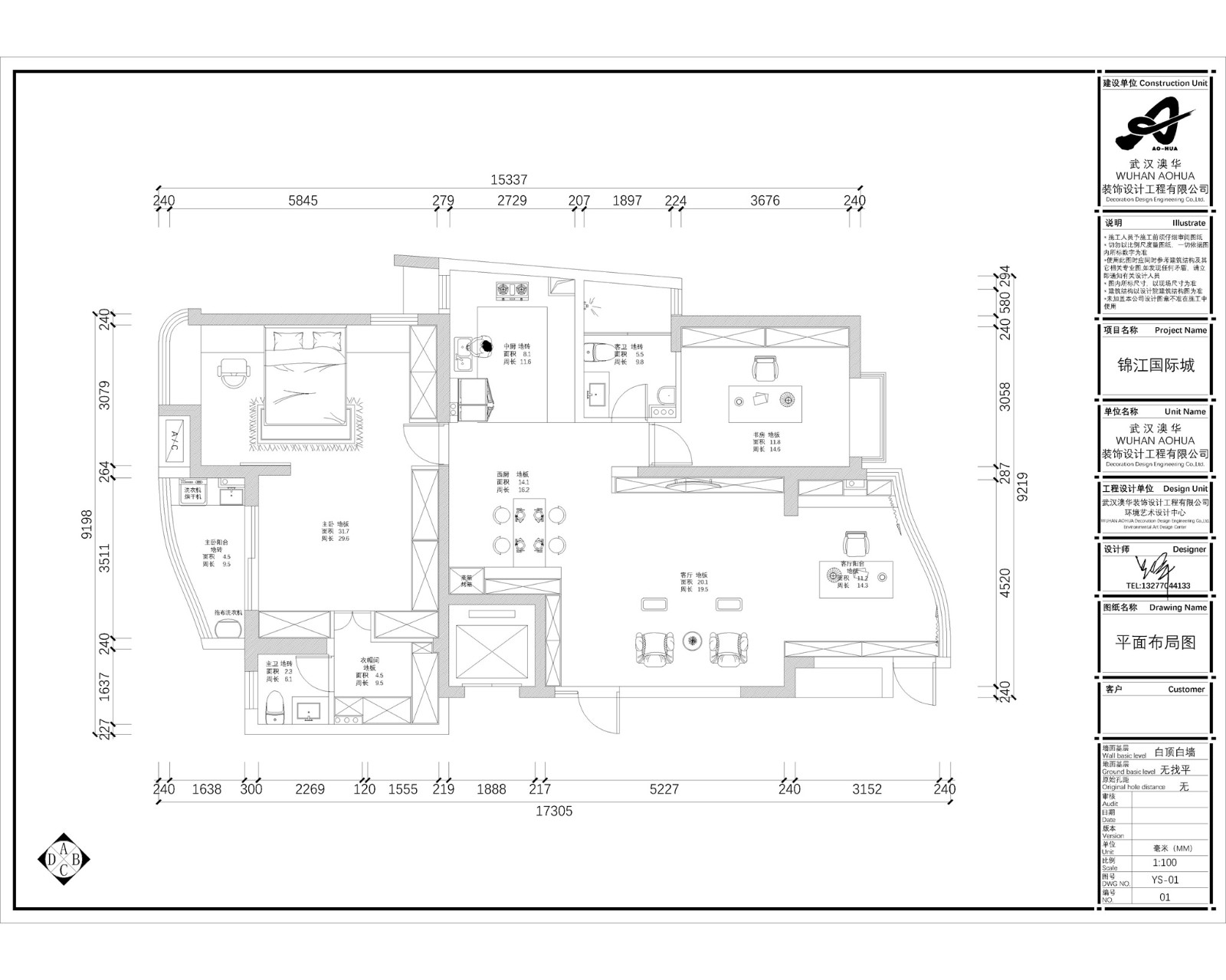
锦江国际这套三居室的140㎡的住宅原有的户型结构并不算平整,存在一定的斜角空间,因此需要设计师将空间进行更加合理的利用,避免斜角带来的视觉压迫感,而由于业主喜爱阅读及高品质的生活,因此设计师将次卧改造成一个书房 MK体育app下载,同时借助收缩式的家具设计,满足客人来访时的居住使用需求。
客厅:


大面积的白色搭配上细节处的线条处理 MK体育官网,简约耐看而又不失优雅高级格调。
书房:

大面积的淡蓝色点缀上艺术照片墙 MK体育手机版,简约而又不失去生活气息,白色办公桌则与客厅色彩形成呼应强调。
卧室:


休憩空间使用与房屋整体装修一致的白色,强调功能空间之间的衔接感,再搭配以少量的藕粉色,营造温馨静谧感 MK体育安卓版。
知精准报价 避装修深坑
选择您喜欢的风格
现代轻奢
现代美式
北欧
新中式
欧式
其他
知精准报价 避装修深坑
选择房屋面积区间
您的户型
两居室
三居室
四居室
五居室
六居室
知精准报价 避装修深坑
稍等片刻,您的报价正在生中......
知精准报价 避装修深坑
每日仅限前10名用户