24小时咨询电话
027-82411111
首页 > 找设计师 > 黄毓松设计师户型解析
户型解析
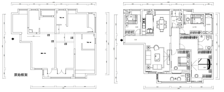
聚豪华庭190㎡四居室轻奢格调住宅户型解析
MK体育官网 - 四居室
MK体育最新版本 - 190m²
MK体育官网入口 - 轻奢风

    案例简介:复式住宅虽然可利用面积更多,但是存在着楼梯结构,因此在进行规划设计的时候一定要充分利用好楼梯处的面积,否则不仅会造成空间浪费,还会影响整体美观性,设计师在与业主进行深入的沟通之后,舍弃楼道区域的再利用 MK体育,借助绿植提升空间的美观度,而二层外部区域则就用玻璃走廊进行围隔,避免出现安全隐患的同时还不会造成空间的拥堵感。


    户型解析:




    聚豪华庭这套190㎡的四居室为复式楼 MK体育app下载,客厅拥有大阳台,通风采光好,户型方正,结构合理,空间适中,是一套不可多得的经典户型,为了提升房屋整体美观度,设计师借用“Y”形楼梯进行一二层空间的衔接,而楼梯扶手处则利用带有金属线条降表处理的玻璃进行打造,简约而又不失雍容典雅,二层空间层高相对比较矮,因此设计师选用了大量矮脚家具进行装饰,避免出现空间违和感。


    客厅:


客厅.jpg


    大面积的白色点缀上少量黑色,经典耐看而又不失现代时尚气息 MK体育官网


    餐厅:


餐厅.jpg


    就餐区域被设置在一楼,借助大理石台面打造餐桌 MK体育手机版,简约而又不失轻奢高级感。


    衣帽间:


衣帽间.jpg

    白色橱柜搭配上原色色地板,两种素色之间的组合清新而又不失结构美 MK体育安卓版


    卫生间:




    为提升卫生间区域的洁净感,设计师选用了大面积的白色作为卫生间主基调色,搭配以少量绿植进行点缀,清新又高雅 MK体育ios版


百瑞景160㎡四居室现代简约优雅住宅户型解析
"MK体育注册入口" 四居室
160m²
MK体育最新版本 - 现代简约

    案例简介:本案例的主人公家庭成员较多,因此希望设计师在进行室内装饰设计的时候能够从不同家庭成员的需求考虑出发,确保房屋能够满足不同年龄段家庭成员的起居使用需求 MK体育最新版本,根据业主的介绍与需求,设计师选择了受众较广且相对易于打理的现代简约风进行室内软装,同时按照业主家庭成员的休憩需求划分出多个房屋,再借不同的元素进行装饰,以满足不同年龄段居住者的审美需求。


    户型解析:








    百瑞景这套16-㎡的四居室住宅户型相对比较平整,且已经进行了基础的功能分区,因此设计师的职责就是在原有的结构基础上进行装饰设计,同时按照业主不同家庭成员的需求进行合理的空间再分配,由于老年人对于空间的安静度要求较高,因此设计师将房屋中独立性较强的区域打造成长者房,以提升老人的休憩质量,为了便于业主照顾小孩,儿童房与主卧则被打造在相近的区域 MK体育平台登录


    客厅:




    木质栅栏式的背景墙简约而又不失清新感,搭配上灰色沙发 MK体育注册入口,整体给人柔和舒适的高级感。


    餐厅:




    嵌入式双开大冰箱存在感不强且能够满足日常使用需求,长条形浅色餐桌耐看且能够满足多位家庭成员的就餐需求 MK体育官网入口


    主卧:


主卧.jpg

    为了提升主卧区域的静谧感,设计时使用了相对比较柔和的灰白配色,同时借助柔软的地毯与温润感十足的木质地板来营造休憩空间的温馨柔和氛围。


    儿童房:


儿卧.jpg


    为了避免后续再进行返工,设计师在进行儿童房设计的时候没有使用到较多童真感的元素,而是借助黑白灰的经典配色强调空间耐看度与舒适度,以满足长期使用需求。


中建文化星城 125 ㎡三居室欧式雅居户型解析
三居室
125m²
欧式风

    案例简介:本案例的业主是一位刚刚留学归来的95后女学生,这套由父母购置的房屋将按照她的喜好与想法进行装饰设计。而刚刚从欧洲回来的她对欧洲文化有着浓烈的兴趣,因此希望能够在家装中融入欧式文化,强调个性与古典。为了满足业主的审美,设计师选用了传统的欧式风进行软装,搭配以各种欧式元素,强调空间高档贵气氛围。


    户型解析:




    中建文化星城的这套三居室的建筑面积大约为125㎡,户型方正且结构合理,整体通风采光不错,因此整个的户型结构无需进行过多的调整。按照业主的想法,设计师将现代元素与欧式文化进行融合,将雍容华贵与现代时尚进行完美融合,在突出房屋本身结构优势的同时彰显业主的个人品味。


    客厅:




    繁琐的造型设计、华贵的灯饰营造了一个高档而又复古的贵族氛围。而小清新感十足的淡蓝色壁纸,则降低了空间的繁琐感与压抑感。


    卧室:


主卧_o_0.jpg

    蓝色衣柜与床头墙的色彩相呼应,强调空间的一致性。同时借助曲线勾勒床体,打造空间的富丽堂皇贵族感。


百瑞景六期 162平米美式轻奢四居户型解析
"MK体育官网" 四居室
"MK体育官网" 162m²
"MK体育ios版" 美式

    案例简介:作为一个即将迎来二胎的家庭,业主希望能够将空间中预留出足够的亲子互动空间与学习空间。再者由于业主夫妇两人工作性质的原因,用于起居打扫的时间也相对比较有限,因此希望设计师能够从简洁的角度出发进行规划设计,同时也需要展示一定的时尚感与品质感。因此设计师选择了相对比较简洁耐看而又自带贵族气息的现代轻奢风,搭配以各种质感元素进行装饰。


    户型解析:


1.jpg


    荷景苑这套162平方米的四居室住宅可利用设计面积较广,原有的户型结构也基本能够满足现有家庭成员起居需求。不过业主提出,未来还会迎接一个宝宝,因此设计师在进行空间设计的时候预留出一个足够的空间,确保两个孩子都能够拥有自己的独立空间。而整体软装上,设计师则为业主们选择了相对比较经典耐看的轻奢风,确保整个室内空间易于打扫。


    客厅:




    带有天然清冷气息的大理石材质搭配上造型简单的吊灯,简约而又耐看,日常打理也相对比较容易。


    餐厅:


餐厅.jpg

    大面积的灰色大理石搭配上白色餐座椅,简约中透露着一股高级格调韵味。由简约挂画打造的背景墙清新而又艺术感十足。


菩提苑187㎡四居室欧式典雅住宅户型解析
MK体育注册入口 - 大平层
187m²
"MK体育" 欧式风

    案例简介:


    本案例的房屋业主为年轻时尚的85后夫妻,追求典雅高级的装修效果,因此设计师为业主们选择了相对比较复古的欧式装修风格。为了保障空间的时尚感与复古典雅气息能够相互融合,设计师借助色彩的搭配以及各类元素的混搭来营造一种带有现代时尚气息的个性欧式风家具。而由于房屋面积并不算很大,因此设计师舍弃了一些传统而又繁琐的欧式元素,以强调空间的简洁大气美。


    户型解析:


1.jpg


    菩提苑这所187㎡的四居室住宅采光并不算很好,因此设计师在进行规划设计的时候将多个空间的墙面都打通,将更多的阳光引入室内,以提升室内采光度。同时,将阳台面积放大,并打造成一个与室外带有视觉衔接感的休憩空间,以满足年轻夫妻的观赏需求,有效的提升了生活的品质感。为避免过多欧式元素带来的压迫感,设计师选用了相对比较简约素雅的色彩作为空间主基调色,以提升空间大气美。


    客厅:


2.jpg


    客厅区域的整体用色相对比较洁净素雅,米黄色的瓷砖地板、灰色条纹的电视背景墙,这些素雅的色彩都有效从视觉上起到扩大空间的作用。而色彩浓烈的复古油画、带有浮雕处理的巨型花瓶,则为空间更具典雅高级感。


    卧室:


3.jpg


    由于卧室采光相对较好且面积较大,因此设计师在对卧室进行设计的时候就大胆的选用了较多的深色元素,深棕色的地板、床头柜,让整个空间看起来更加的端庄厚重。而大面积的窗户与绿植则降低了深色所带来的压迫感,让空间多一抹清新韵味。


MK体育平台登录 - 黄毓松
设计总监
从业年限 : 2005
擅长风格 : 极简风,法式,中古风,意式风,北欧
设计案例 : 华侨城红坊,临江府,大华铂金悦府,大华锦绣时代,融侨城,滨江美域,月亮湾壹号等
预约数量 : 136
找TA设计
算一算我家装修需要多少钱
    • 张女士
      132****178
      200m²
    • 成先生
      134****4856
      83m²
    • 董先生
      137****2569
      95m²
    • 成先生
      133****7485
      130m²
    • 李先生
      150****4475
      220m²
    • 张先生
      139****5050
      187m²
    • 王女士
      178****4563
      168m²
    "MK体育ios版" 预约设计师
    姓名*
    楼盘*
    电话*
    *为了您的权益, 您的隐私将严格保密
    预约成功
    您已报名成功, 稍后会有客服人员联系您。 您的隐私将被严格保密。
    关注二维码了解更多装修知识
    "MK体育官网" 关于我们
    澳华历程
    官方微博
    "MK体育手机版" 联系我们
    装修咨询电话 : 027-82411111
    售后服务电话 : 027-82866788
    公司地址 : 武汉市江岸区澳门路232号金冠大厦
    关于我们
    MK体育注册入口 - 友情链接 :
      MK体育 页面版权所有 yezi7357.cn

      算一算,您家装修需要花多少钱?

      知精准报价 避装修深坑 (MK体育ios版)

      01/03

      选择您喜欢的风格

      • 现代轻奢

      • 现代美式

      • 北欧

      • 新中式

      • 欧式

      • 其他

      "MK体育安卓版" 算一算,您家装修要花多少钱?

      知精准报价 避装修深坑

      MK体育安卓版 - 02/03

      选择房屋面积区间

      • 80-100㎡
      • 100-140㎡
      • 140-200㎡
      • 200-300㎡
      • 300㎡以上

      MK体育手机版 - 03/03

      您的户型

      • 两居室

      • 三居室

      • 四居室

      • 五居室

      • 六居室

      MK体育安卓版 - 算一算,您家装修要花多少钱?

      知精准报价 避装修深坑

      0%

      稍等片刻,您的报价正在生中......

      算一算,您家装修要花多少钱?

      知精准报价 避装修深坑

      您的完整报价已经生成 (MK体育)

      报名成功享抢订优惠名额

      每日仅限前10名用户