案例简介:作为一个即将迎来二胎的家庭 MK体育,业主希望能够将空间中预留出足够的亲子互动空间与学习空间,再者由于业主夫妇两人工作性质的原因,用于起居打扫的时间也相对比较有限,因此希望设计师能够从简洁的角度出发进行规划设计,同时也需要展示一定的时尚感与品质感,因此设计师选择了相对比较简洁耐看而又自带贵族气息的现代轻奢风,搭配以各种质感元素进行装饰。
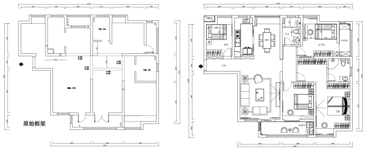
户型解析:

荷景苑这套162平方米的四居室住宅可利用设计面积较广,原有的户型结构也基本能够满足现有家庭成员起居需求,不过业主提出,未来还会迎接一个宝宝,因此设计师在进行空间设计的时候预留出一个足够的空间 MK体育app下载,确保两个孩子都能够拥有自己的独立空间,而整体软装上,设计师则为业主们选择了相对比较经典耐看的轻奢风,确保整个室内空间易于打扫。
客厅:




带有天然清冷气息的大理石材质搭配上造型简单的吊灯,简约而又耐看 MK体育官网,日常打理也相对比较容易。
餐厅:

大面积的灰色大理石搭配上白色餐座椅 MK体育手机版,简约中透露着一股高级格调韵味,由简约挂画打造的背景墙清新而又艺术感十足。
知精准报价 避装修深坑
选择您喜欢的风格
现代轻奢
现代美式
北欧
新中式
欧式
其他
知精准报价 避装修深坑
选择房屋面积区间
您的户型 (MK体育)
两居室
三居室
四居室
五居室
六居室
知精准报价 避装修深坑
稍等片刻,您的报价正在生中......
知精准报价 避装修深坑
每日仅限前10名用户