小区:汉口1872
户型:106㎡. 107㎡. 110㎡. 122㎡. 137㎡ MK体育.

汉口1872项目由两大央企招商蛇口与中国铁建地产集团,承时代发展大势,联袂携手,落位解放大道硚口宗关,约6000㎡保留文化建筑,以历史为底色 MK体育app下载,描绘硚口百年的文明记忆,形成完整且具活力的生活社区,打造武汉人居迭代新作--汉口1872,开启武汉生活新浪潮。
为了给汉口1872的业主带来更好的生活体验,澳华装饰的设计师全面解析建面106㎡-137㎡户型的户型方案,从居住者出发,从场景入手,平衡视觉效果与居住功能,扩展生活秩序 MK体育官网。
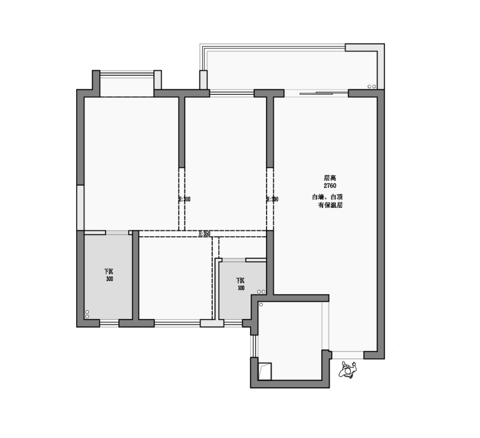
106㎡户型解析

△原始结构图
户型优点
✔ 户型方正 MK体育手机版,活动区域开阔。
✔ 拥有观景大阳台。
户型缺点
✘ 厨房相对比较小,活动受限 MK体育ios版。
方案一
开放式厨房,打造开阔互动公区

思路解析
1 开放式厨房设计,同时利用岛台连接餐桌,制造了一个现代感十足的餐厨空间 MK体育最新版本。
2 冰箱移到餐厅区域,释放厨房空间 MK体育平台登录。
3 阳台设置洗衣区,将晾晒与休闲结合 MK体育注册入口。
4 主卫纳入主卧,形成便捷套卧 MK体育官网入口,利用L型衣橱打造衣帽间,增加收纳。
5 保留三房,满足多人口家庭居住需求 MK体育集团官网。
效果图展示


方案二
封闭式厨房+舒适三房

思路解析
1 封闭式中餐厨房,利用可开可合的玻璃移门,隔绝油烟不隔绝采光。
2 玄关到客厅设置一整墙背景柜,视觉大气纯净,同时增加收纳空间。
3 次卫做干湿分离,方便多人同时使用。
4 主卫纳入主卧,形成便捷套卧;利用L型衣橱打造衣帽间,增加收纳。
5 保留三房,满足多人口家庭居住需求。
效果图展示


方案三
开放式格局,打造开阔互动公区

思路解析
1 开放式厨房设计,同时利用岛台连接餐桌,制造了一个现代感十足的餐厨空间。
2 餐厅与客厅打通,制造开阔互动的公共区域。
3 阳台设置洗衣区,将晾晒与休闲结合。
4 主卫纳入主卧,形成便捷套卧;利用L型衣橱打造衣帽间,增加收纳。
5 保留三房,满足多人口家庭居住需求。
效果图展示


107㎡户型解析

△原始结构图
户型优点
✔ 客餐厅的连贯性比较好。
✔ 客厅的阳台比较大,可以让空间更明亮。
✔ 主卧空间的空间比较宽敞。
户型缺点
✘ 作为小三房户型,第三个房间比较小,如果放床整个空间都塞满了。
✘ 房子的承重墙体比较多,可变性不大,在空间分割上有很多局限性。
✘ 厨房空间比较小。
方案一
开放式设计,增设社交厨房

思路解析
1 开放式厨房设计,利用吧台连接西厨,扩大使用面积。
2 餐厅与客厅之间采用可开可合的玻璃门隔断,合上时隔绝油烟,打开时空间互联。
3 阳台一半纳入客厅,一半纳入卧室,扩展了卧室空间。
4 主卫纳入主卧,形成便捷套卧;利用L型衣橱打造衣帽间,增加收纳。
5 保留三房,满足多人口家庭居住需求。
效果图展示


方案二
观景大阳台+舒适三房

思路解析
1 开放式厨房设计,利用吧台连接西厨,扩大使用面积。
2 餐厅与客厅之间采用可开可合的玻璃门隔断,合上时隔绝油烟,打开时空间互联。
3 客厅和卧室的阳台联通,构建开阔的观景大阳台。
4 主卫纳入主卧,形成便捷套卧;利用L型衣橱打造衣帽间,增加收纳。
5 保留三房,满足多人口家庭居住需求。
效果图展示


110㎡户型分析

△原始结构图
户型优点
✔ 南北通透,大阳台,采光通风良好。
✔ 户型功能区域划分清晰。
户型缺点
✘ 北面卧室空间较小。
✘ 阳台利用率不高。
方案一
舒适三房,满足多人口家庭

思路解析
1 入户加长鞋柜分区设置换鞋挂衣区,增加储物收纳实用性。
2 餐厅餐桌靠墙摆放,家居动线合理开阔,餐边酒柜美观实用。
3 儿童房与阳台连通,有独立的学习空间。
4 次卧床位靠墙摆放,让出大部空间活动。
效果图展示


方案二
奢华套卧+开阔公区

思路解析
1 入户加长鞋柜分区设置换鞋挂衣区,增加储物收纳实用性。
2 餐厅餐桌靠墙摆放,家居动线合理开阔,餐边酒柜美观实用。
3 儿童房与阳台连通,有独立的学习空间。
4 一间面积较小的次卧作为衣帽间纳入主卧,形成一个套间,收纳更全面。
效果图展示


方案三
独立书房,丰富生活场景

思路解析
1 入户加长鞋柜分区设置换鞋挂衣区,增加储物收纳实用性。
2 餐厅餐桌靠墙摆放,家居动线合理开阔,餐边酒柜美观实用。
3 独立书房兼客房,实用性强。
效果图展示


122㎡户型分析

△原始结构图
户型优点
✔ 南北通透,采光通风好。
✔ 双阳台,明亮宽敞,更多可能性。
户型缺点
✘ 餐厅略显紧凑。
✘ 厨房空间有限。
方案一
舒适三房+增设阳台办公区

思路解析
1 通阳台一分为二,让南边次卧功能更加齐全。
2 过道处的酒柜(储物柜)可以一柜被餐厅、客厅两个空间所用。
3 厨房三联动移门,使出入口最大化。
效果图展示


方案二
开阔双阳台+舒适三房

思路解析
1 保留了双阳台的开阔性,让阳台有更多的可能性。
2 主卧室开放式的衣帽间让女主人拥有更美好的仪式感。
3 厨房三联动门,使厨房和餐厅之间隔而不断,有着更好的联系。
效果图展示


137㎡户型解析

△原始结构图
户型优点
✔ 南北通透,大阳台,采光通风良好。
✔ 户型功能区域划分清晰。
户型缺点
✘ 北面房间小,飘窗利用率不高。
方案一
去客厅化设计+开放式书房

思路解析
1 客厅与阳台拉通,大横厅落地窗,采光视线绝佳。
2 沙发背后做开放式书房,可以有多种打开方式,工作、品茗...
3 次卧扩充卫生间及飘窗空间,尺度合理。
4 儿童房安置高低床。
效果图展示



方案二
去客厅化设计+舒适三房

思路解析
1 客厅与阳台拉通,大横厅落地窗,采光视线绝佳。
2 餐厅设置操作柜,提升利用率,满足各种厨电的摆放。
3 次卧扩充卫生间及飘窗空间,尺度合理。
效果图展示


知精准报价 避装修深坑
选择您喜欢的风格
现代轻奢
现代美式
北欧
新中式
欧式
其他
知精准报价 避装修深坑
选择房屋面积区间
您的户型
两居室
三居室
四居室
五居室
六居室
知精准报价 避装修深坑
稍等片刻,您的报价正在生中......
知精准报价 避装修深坑
每日仅限前10名用户