小区:融侨滨江城美域
户型:4#楼A1户型111㎡. 5#楼A1户型111㎡. 3#楼C1户型128㎡. C2户型130㎡ MK体育.

武汉融侨滨江城项目周边与徐东,奥山 MK体育app下载,众圆,积玉桥商圈咫尺之遥,近揽34家幼儿园,12所小学,4所中学,以及1所211高校,多所二甲医院和同济,协和为健康保驾护航,周边优质配套资源丰富,美好生活触手可及。
为了给融侨滨江城美域的业主带来更好的生活体验,澳华装饰的设计师全面解析建面111㎡-130㎡户型的户型方案,从居住者出发,从场景入手 MK体育官网,平衡视觉效果与居住功能,扩展生活秩序。
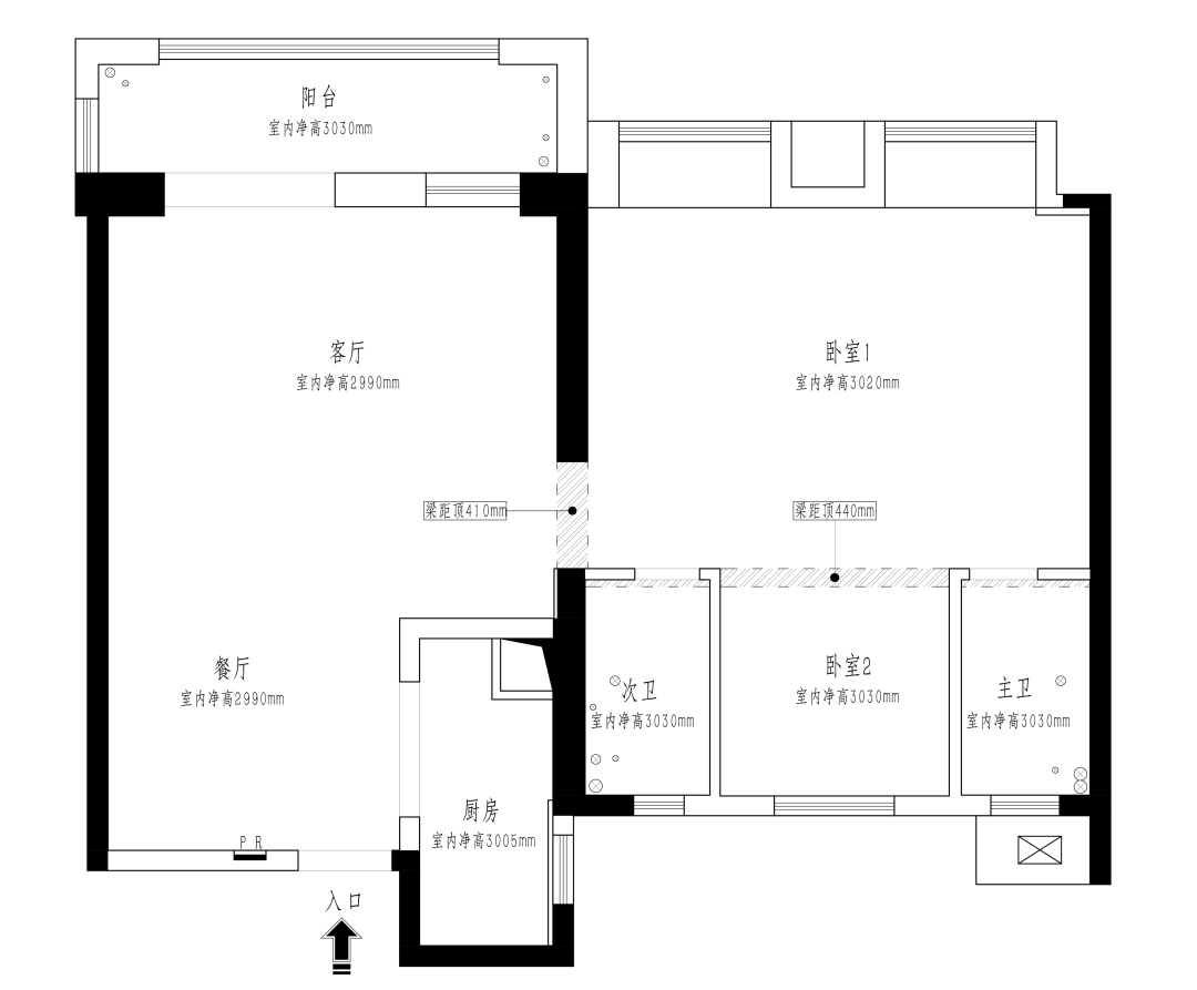
4#楼A1户型111㎡

△原始结构图
户型优点
✔ 户型方正,活动区域开阔 MK体育手机版。
✔ 拥有观景大阳台。
户型缺点
✘ 部分采光有遮挡。
✘ 有部分浪费面积。
方案一
通透的开放式公区+舒适套卧

思路解析
1 联通整个阳台,形成一个开阔明亮的观景区域 MK体育平台登录。
2 一间次卧利用移门与阳台联通 MK体育注册入口,增加采光,扩大了使用空间。
3 将主卫包进主卧 MK体育官网入口,提高生活品质,利用入墙柜增加收纳。
4 面积较小的次卧做多功能书房,打造了一个舒适静谧的办公区域 MK体育集团官网。
5 次卫做干湿分离 MK体育2025版,方便多人同时使用。
效果图展示


方案二
观景双阳台+舒适套卧

思路解析
1 封闭式中餐厨房 MK体育,利用可开可合的玻璃移门,隔绝油烟不隔绝采光。
2 客厅的阳台与卧室的阳台分隔开来,利用移门与阳台联通,增加采光,扩大了使用空间。
3 将主卫包进主卧,提高生活品质;利用入墙柜增加收纳。
4 一间次卧做多功能书房,打造了一个舒适静谧的办公区域。
5 次卫做干湿分离,方便多人同时使用。
效果图展示


5#楼A1户型111㎡

△原始结构图
户型优点
✔ 采光通风都很不错。
✔ 户型功能区域划分清晰。
✔ 拥有观景大阳台。
户型缺点
✘ 一间卧室面积较小。
方案一
开阔空间,打开社交场景

思路解析
1 餐厅、客厅、阳台采用一体化设计,增大视觉空间,增加了互动性。
2 次卫采用干湿分离,提升卫生间的体验感。
3 一间面积较小的次卧纳入主卧,做步入式衣帽间,形成一个豪华套卧。
4 次卧连接阳台,在阳台做书桌和吊柜,打造学习办公区域。
效果图展示



方案二
实用三房,满足多人口家庭

思路解析
1 餐厅、客厅、阳台采用一体化设计,增大视觉空间,增加了互动性。
2 次卫采用干湿分离,提升卫生间的体验感。
3 主卧靠墙做一整排通顶柜,增加收纳;主卫包进主卧,形成便捷的套间。
4 次卧连接阳台,在阳台做书桌和吊柜,打造学习办公区域。
5 保留三房,满足多人口家庭居住需求。
效果图展示


3#楼C1户型128㎡

△原始结构图
户型优点
✔ 每个空间通风采光较好。
✔ 客厅功能区域空间较大,有利于舒适性的布置,增加使用性和趣味空间。
户型缺点
✘ 布局不合理。
方案
打造社交化客厅+舒适套卧

思路解析
1 客厅与餐厅、阳台一体设计,提升视觉空间,增加了互动场所。封闭式中餐厨房,隔绝油烟。
2 主卧打造L型衣橱构建衣帽间,增加收纳的同时还划分了功能区。主卫纳入主卧,打造功能齐全的舒适套房。
3 一间次卧打造多功能书房,增设独立的学习、办公区域。
效果图展示


C2户型130㎡

△原始结构图
户型优点
✔ 户型方正,采光通风都很不错。
✔ 户型功能区域划分清晰,动静分离。
✔ 拥有开阔的观景大阳台。
户型缺点
✘ 过道狭长,有部分空间浪费。
✘ 卫生间面积较小。
方案一
开阔互动公区+舒适三房

思路解析
1 客厅、餐厅与阳台联通,增大会客区域,提升大气视觉。
2 客厅整墙电视柜制造充足储存空间,视觉整洁大气。
3 主卫纳入主卧,利用入墙柜补充收纳。
4 次卧连接阳台,在阳台做书桌和吊柜,打造学习办公区域。
效果图展示


方案二
舒适三房,满足多人口家庭

思路解析
1 客厅、餐厅与阳台联通,增大会客区域,提升大气视觉。
2 客厅整墙电视柜制造充足储存空间,视觉整洁大气。
3 主卧面积向外借,两个卫生间合并为一间,增加主卧的使用面积,也解决单个卫生间较小的问题。
4 次卧连接阳台,在阳台做书桌和吊柜,打造学习办公区域。
效果图展示


知精准报价 避装修深坑
选择您喜欢的风格
现代轻奢
现代美式
北欧
新中式
欧式
其他
知精准报价 避装修深坑
选择房屋面积区间
您的户型
两居室
三居室
四居室
五居室
六居室
知精准报价 避装修深坑
稍等片刻,您的报价正在生中......
知精准报价 避装修深坑
每日仅限前10名用户