案例简介:本案例的业主是企业高管,工作压力大的他希望能够在休憩的闲暇时光尽情享受属于自己的生活 MK体育,因此希望设计师在设计的时候能够尽量的往个性化,洒脱及舒适等方向靠,而设计师通过对业主生活习惯,喜好,家庭成员需求的了解,完成了本案例的设计,在装修风格的选择上,设计师选择了个性感较强的美式风,希望能够帮助业主在属于自己的时光中感受到舒适和自由。
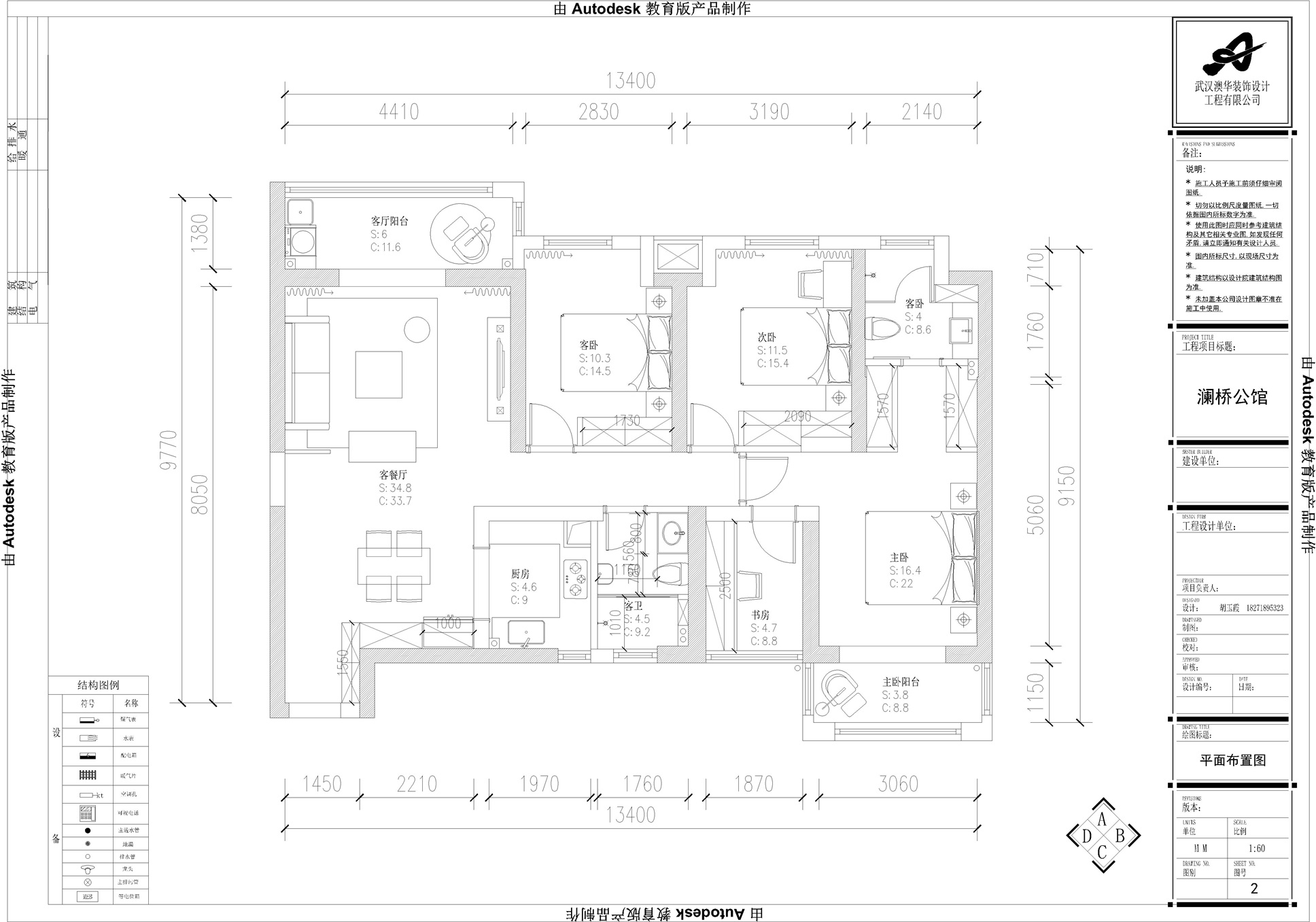
户型解析:


这栋位于澜桥公馆A栋的137㎡四居室住宅户型南北通透,采光较好,且位于高层,因此设计师在进行规划设计的时候充分利用了房屋的户型结构优势 MK体育app下载,同时根据业主的需求进行空间的规划整合,以将房屋呈现出舒适,个性的整体感观,虽然房屋整体面积不小,但是由于业主家庭成员较多,所需划分的休憩空间也比较多,因此设计时就需舍弃一些繁琐的元素,以简约大气为主。
客厅:



白色大理石电视背景墙与沙发处碎花墙纸形成强烈碰撞 MK体育官网,在碰撞中形成一种个性化的独特美感。
餐厅:



胡桃木家具搭配上造型简约的吊灯就构成了就餐区域的软装,整体造型简约而又耐看,同时不会占用较多空间 MK体育手机版。
厨房:

厨房空间整体以白色为主基调色,避免大面积的深色造成视觉压迫感 MK体育安卓版,同时借助少量黑色点缀,提升空间丰富感。
卫生间:

卫生间区域考虑不同家庭成员的使用需求设置了两个不同马桶,以提升生活品质,和头目的储物柜搭配以浮雕处理 MK体育ios版,则让整个卫生间环境更具格调感。
知精准报价 避装修深坑
选择您喜欢的风格
现代轻奢
现代美式
北欧
新中式
欧式
其他
知精准报价 避装修深坑
选择房屋面积区间 (MK体育官网)
您的户型
两居室
三居室
四居室
五居室
六居室
知精准报价 避装修深坑
稍等片刻,您的报价正在生中......
知精准报价 避装修深坑
每日仅限前10名用户