案例简介:本案例的主人是一个二十多岁的年轻女孩,年纪虽然不算大但是却有着自己的坚持,而在家装设计上她也有着自己的想法与设计思路,因此设计师在进行本案例设计的时候充分考虑了业主本人的喜好,需求 MK体育,然后再根据这些进行延伸,拓展,以保障能够打造出契合业主喜好的家居空间。
户型解析:



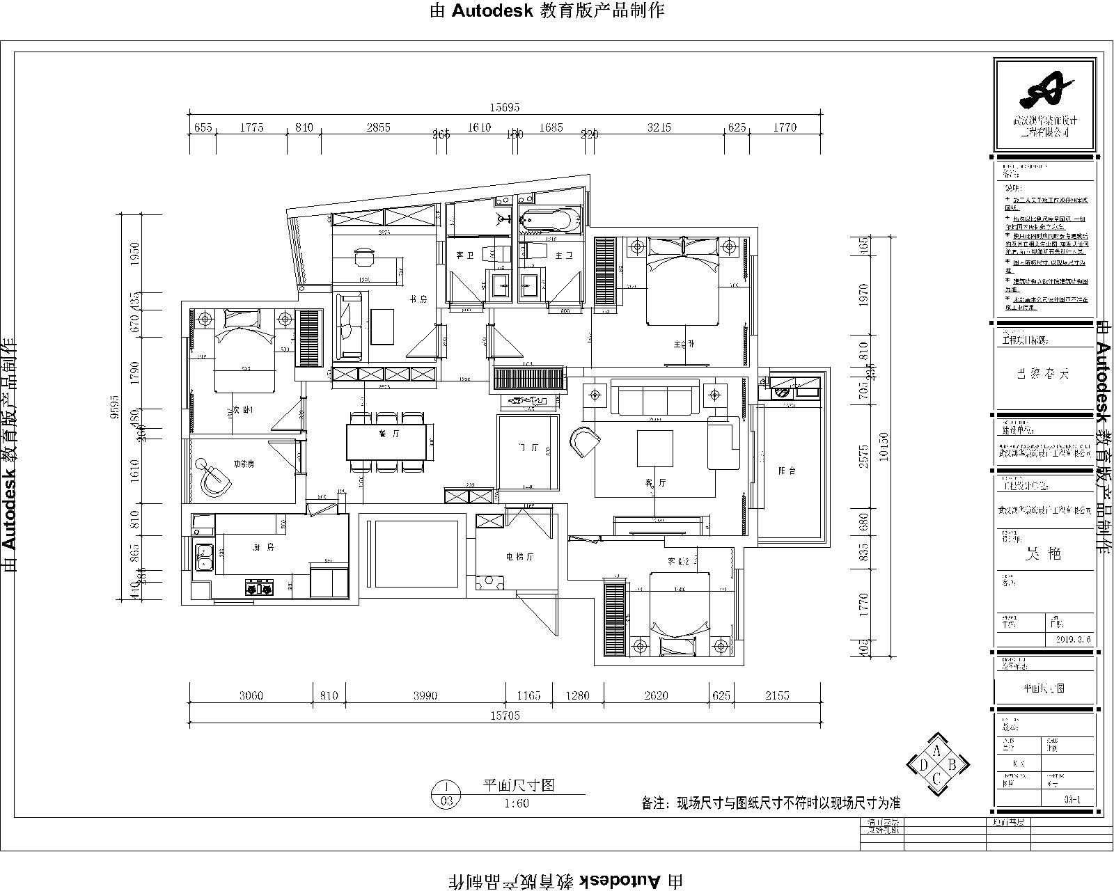
巴黎春天这套143㎡的住宅户型最大的问题就在于不够平整,而户型 不平整所带来的犄角角落如果不进行合理的规划设计,那么整个空间不仅会缺乏美观度,还会造成空间的浪费,而设计师则利用户型的结构特点 MK体育app下载,顺着犄角空间放置置物台,浴缸,在无形之中化解了犄角困扰,而其他区域则按照业主的需求进行了一定的再划分,以满足日常起居使用。
客厅:

客厅选用了大量欧式元素,如华丽的吊灯 MK体育官网,欧式造型家具,复古台灯等等,这些元素让整个会客区域看起来更加的华丽精致。
餐厅:

带有暗纹处理的壁纸搭配上菱形纹理地板 MK体育手机版,奠定了精致的格调氛围,而桌椅,吊灯等细节设计,则为空间增添艺术时尚气息。
书房:

极具艺术氛围的吊灯搭配上复古的浅色台灯,将时尚的气息与欧式复古风情完美交织在一起 MK体育安卓版。
卧室:


卧室沿用了与整个房屋一致的元素,通过各类线条的走向,家具的造型处理营造一种典雅高贵的大气美 MK体育ios版。
知精准报价 避装修深坑
选择您喜欢的风格
现代轻奢
现代美式
北欧
新中式
欧式
其他
知精准报价 避装修深坑
选择房屋面积区间
您的户型
两居室
三居室
四居室
五居室
六居室
知精准报价 避装修深坑
稍等片刻,您的报价正在生中......
知精准报价 避装修深坑
每日仅限前10名用户