MK体育最新版本 - 24小时咨询电话
027-82411111
当前位置 : 首页 > 大咖设计 > 胡慧
找TA设计
设计独特
MK体育注册入口 - DESIGNER
胡慧 高级主任设计师
从业时间 : 2007 作品数量 :10套
司 : 华中超级旗舰店
"MK体育官网" 业主评价 :
    • 装修有品质
    • 方案很有创意
    • 设计非常走心
    • 家庭设计美观
    • 态度好
    • 工作细致
    极简风,法式,新中式,中古风,意式风
    • 个人简介
    • 设计理念
    • 经典楼盘
    • 2009年中国住宅行业优秀设计师

      2011年度DK设计大赛优秀奖

      2012年筑巢奖室内空间入围奖

      2018年第九届筑巢奖别墅空间优秀奖

      2019年第三届中国室内设计新势力榜华中区武汉TOP10

      2021年度“福田杯”年度设计大赛优秀奖

      2023年度红鼎奖设计大赛优秀奖

      湖北省长江商报江城女性设计师大赛TOP10


    • 设计不是为了设计而设计,而是通过设计师的专业性,用艺术的表现手法对居者生活方式的倡导,任何设计都应以功能合理化为基石,通过合理划分空间 MK体育手机版,让设计融入生活,营造自然,品味,格调的写意空间。


      风格是独一无二的,这种独特是因特定的人,地点和环境形成的,而设计就是为客户寻找个人风格的有趣味的过程,用设计改变生活 MK体育安卓版


    • 武汉天地. 中信泰富. 沙湖中心. 新港长江府 MK体育ios版. 华侨城原岸. 武汉润府. 海铂御观. 长江中心等.

    相关案例
    户型解析
    在施工地
    其他案例推荐
    "MK体育平台登录" 相关案例
    户型解析
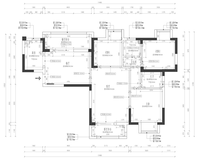
    中建之星160㎡三居室轻奢浪漫婚房户型解析
    "MK体育注册入口" 三居室
    160m²
    轻奢风 (MK体育ios版)

        案例简介:本案的业主是一对即将结婚的年轻夫妻,同为白领的他们不喜欢过度装饰,希望设计师能够使用一些尽可能简约的元素装饰空间,以保障耐看且易于打理,设计师按照业主的喜好与想法,选择了简约而又不失品质感的现代轻奢风进行装饰设计,利用简洁的元素与色彩强调空间的沉稳优雅气息,而细节处的设计则提升空间的高级品质感 MK体育最新版本

    1.jpg


        户型解析:


        这套中建之星的三居室面积约为160㎡,整体的结构相对比较规整,设计师在进行规划设计的时候巧妙的借助入户作为轴线,将空间进行软隔断,将其中一部分打造成会客区域 MK体育平台登录,另外一个区域改造成为就餐区域,而走廊尽头则借助墙面装饰画进行点缀,避免走廊空间过于空荡的同时还有效提升了空间的艺术感与品位感。


        客厅:



        嵌入式的电视机背景墙设计有效提升空间的现代时尚气息 MK体育注册入口,浅灰色的背景搭配上直线条则给人沉稳大气的清新质感。


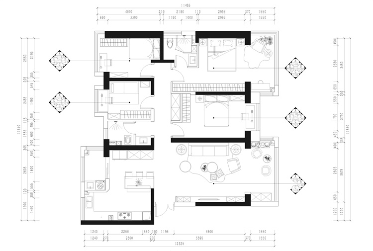
    西北湖一号199㎡四居室轻奢高档住宅户型解析
    四居室
    199m²
    轻奢风 (MK体育注册入口)

        案例简介:本案例的业主是一位企业的高管,家中的常住人员除了业主夫妻二人之外,保姆也会在家中居住,因此希望设计师能够单独规划出一块保姆居住的空间,同时将保姆的空间与其他人的空间分隔开,提升私密性,设计师通过与业主的沟通交流了解到,业主喜欢简洁有质感的元素,因此选用现代轻奢风进行装饰设计,利用材料的质感来提升室内环境的档次感与格调感 MK体育官网入口


        户型解析:


    1.jpg

        西北湖一号这套四居室的占地面积约为199㎡,户型结构并不规整,尤其是入户区域的空间过多,因此设计师将入户区域进行改造,借助户型本身自带的拐角进行视觉装饰,提升室内隐私感,同时借用一些色彩,图案装饰,提升玄关区域的视觉美感感,为了业主业主及家庭人员的起居使用需求,空间中共规划了三个卫浴区域,其中主卧带一个 MK体育集团官网,保姆房带一个,提升空间私密性,而另外一个则作用共用洗浴空间,满足客人的使用需求。


        客厅:

    2.jpg


        对称式的大理石背景墙搭配上黑色嵌入式储物柜设计 MK体育2025版,营造高档品质生活感。


        餐厅:


    3.jpg


        就餐区域借助淡橘色桌椅打造,强调实用性 MK体育,吊顶处不同类型的灯具,则起到软隔断的作用。


        卧室:


    4.jpg


        以线条装饰打造的墙面简约而又不失沉稳高级感,圆形巨型吊顶则营造品质格调感。


    尚湖熙园127㎡三居室轻奢品质婚房户型解析
    三居室
    127m²
    轻奢风

        案例简介:本案例的业主是一对即将进行婚姻殿堂的新房夫妻,同为教师的两人对于中国传统文化有着浓烈的兴趣,因此他们希望能够在家居空间中融入一些传统的中式元素,打造出一所带有古典韵味而又不失喜庆氛围的品质住宅。设计师按照业主们的想法选择了古韵气息较为浓厚的中式轻奢装修风,借助各种古香古色的元素来营造一种悠然的历史氛围感。


        户型解析:


    1.jpg


        尚湖熙园这套三居室房屋的建筑面积约为127㎡,空间面积较为宽敞,除了带有三个卧室空间之外,房屋带有两个阳台,整体采光好且带有视角观赏优势,因此设计师在进行空间规划设计的时候充分利用了阳台空间,借助阳台将室外阳光与风景更好的引入室内,做到室内室外景色相融,在无形中提升整个家居空间的品质感与温馨感。


        客厅:


    2.jpg


        电视背景墙仅以一面简单的浅褐色壁纸所构成,整体给人以清新自然感,而传统中式造型的家具则为空间增添古韵之美。


        餐厅:


    3.jpg


        带有木材天然纹理的家具为就餐空间蒙上一抹自然的清新之美,而大面积落地窗则将阳光更好引入室内,提升就餐氛围感。


    "MK体育最新版本"
    在施工地
    • 开工
    • 前期
    • 中期
    • 后期
    • 竣工
    预约设计师
    海量行家, 抢订免费设计服务
    每日前20名申请用户, 获3D装修设计图
    预约设计师
    姓名*
    楼盘*
    电话*
    *为了您的权益, 您的隐私将严格保密
    "MK体育ios版" 推荐相关案例
    免费获取同款设计方案
    姓名*
    楼盘*
    电话*
    *为了您的权益, 您的隐私将严格保密
    预约成功
    您已报名成功, 稍后会有客服人员联系您。 您的隐私将被严格保密。
    关注二维码了解更多装修知识
    "MK体育ios版" 客户服务
    在线预约
    滴滴专车
    售后服务
    联系我们
    装修咨询电话 : 027-82411111
    售后服务电话 : 027-82866788
    公司地址 : 武汉市江岸区澳门路232号金冠大厦 (MK体育官网)
    关于我们
    MK体育2025版 - 友情链接 :
      MK体育 页面版权所有 yezi7357.cn

      MK体育 - 算一算,您家装修需要花多少钱?

      知精准报价 避装修深坑

      01/03

      选择您喜欢的风格

      • 现代轻奢

      • 现代美式

      • 北欧

      • 新中式

      • 欧式

      • 其他

      算一算,您家装修要花多少钱?

      知精准报价 避装修深坑 (MK体育)

      02/03

      选择房屋面积区间

      • 80-100㎡
      • 100-140㎡
      • 140-200㎡
      • 200-300㎡
      • 300㎡以上

      03/03

      您的户型

      • 两居室

      • 三居室

      • 四居室

      • 五居室

      • 六居室

      算一算,您家装修要花多少钱?

      知精准报价 避装修深坑

      0%

      稍等片刻,您的报价正在生中......

      "MK体育注册入口" 算一算,您家装修要花多少钱?

      知精准报价 避装修深坑

      您的完整报价已经生成

      MK体育最新版本 - 报名成功享抢订优惠名额

      每日仅限前10名用户