案例简介:本案的业主是一对即将结婚的年轻夫妻,同为白领的他们不喜欢过度装饰,希望设计师能够使用一些尽可能简约的元素装饰空间,以保障耐看且易于打理,设计师按照业主的喜好与想法,选择了简约而又不失品质感的现代轻奢风进行装饰设计,利用简洁的元素与色彩强调空间的沉稳优雅气息 MK体育,而细节处的设计则提升空间的高级品质感。

户型解析:
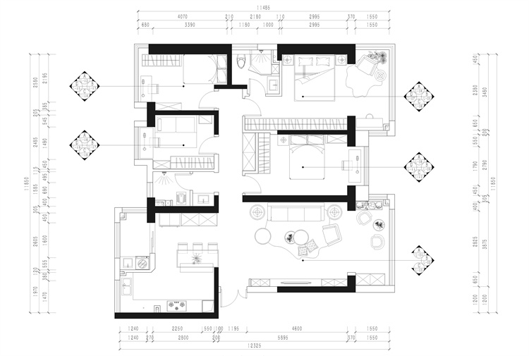
这套中建之星的三居室面积约为160㎡,整体的结构相对比较规整 MK体育app下载,设计师在进行规划设计的时候巧妙的借助入户作为轴线,将空间进行软隔断,将其中一部分打造成会客区域,另外一个区域改造成为就餐区域,而走廊尽头则借助墙面装饰画进行点缀,避免走廊空间过于空荡的同时还有效提升了空间的艺术感与品位感。
客厅:


嵌入式的电视机背景墙设计有效提升空间的现代时尚气息 MK体育官网,浅灰色的背景搭配上直线条则给人沉稳大气的清新质感。
知精准报价 避装修深坑
选择您喜欢的风格
现代轻奢
现代美式
北欧
新中式
欧式
其他
知精准报价 避装修深坑
选择房屋面积区间
您的户型
两居室
三居室
四居室
五居室
六居室
知精准报价 避装修深坑
稍等片刻,您的报价正在生中......
知精准报价 避装修深坑
每日仅限前10名用户