案例介绍:本案为轻奢风格三居室,男主人为企业高管 MK体育,女主人对颜色有着独特的见解,曾是美术学院的她颇爱轻奢风格,沟通时二人提出了轻奢设计的需求,对空间的收纳有一定需求,室内柜面选择整装定做,以呈现出高品质的视觉效果。
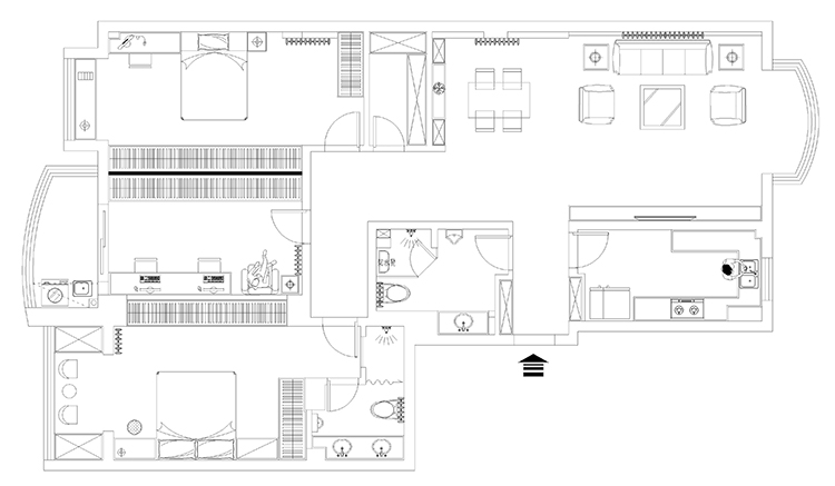
户型解析

户型图比较方正,餐客采用横厅设计,厅出阳台 MK体育app下载,空间采光和通风都很不错,卧室分布在南北两侧,中部为书房,书房内置独立阳台,生活办公都十分舒适,两个卧室的面积宽敞,朝南的卧室带有卫生间,私密性更好。
客厅


客厅与餐厅相互结合 MK体育官网,功能区之间并没有明显隔断,设计师通过灯具和背景墙的造型来进行分区,让整个空间变得更加和谐舒适,电视墙使用了大理石铺贴,并在左侧增设了收纳柜,让客厅空间变得更加富有时尚感和层次感。
餐厅

在白色的餐厅空间中搭配上暖色餐椅,用餐空间立刻有了一丝丝暖意,餐边柜设计富有层次感 MK体育手机版,白色柜面选择了灯带进行点缀,艺术灯具和挂画改善了内部呆板的环境,呈现出精致简约感。
卧室

卧室空间以粉色和米色为主色调,背景墙融入一抹浪漫粉,空间立刻充满了慵懒与暖意,灰白色的床铺在空间中形成点缀 MK体育安卓版,给人干净整洁的视觉感受,梳妆柜见缝插针,层次分明,展现出空间的个性感。
知精准报价 避装修深坑
选择您喜欢的风格
现代轻奢
现代美式
北欧
新中式
欧式
其他
知精准报价 避装修深坑
选择房屋面积区间
您的户型
两居室
三居室
四居室
五居室
六居室
知精准报价 避装修深坑
稍等片刻,您的报价正在生中......
知精准报价 避装修深坑
每日仅限前10名用户