案例简介:装饰的灵魂是设计,设计的灵魂是文化,业主是多子家庭 MK体育,为了可以居住的很舒适便购买了三居室的房屋,在房屋的设计中采取了业务喜欢的轻奢风格,在每一个卧室设计中根据业主以及孩子的喜好来进行,宽敞的客厅作为一家人休闲娱乐的理想选择,对于多子家庭而言,每一个空间都得到充分利用并且不拥挤。
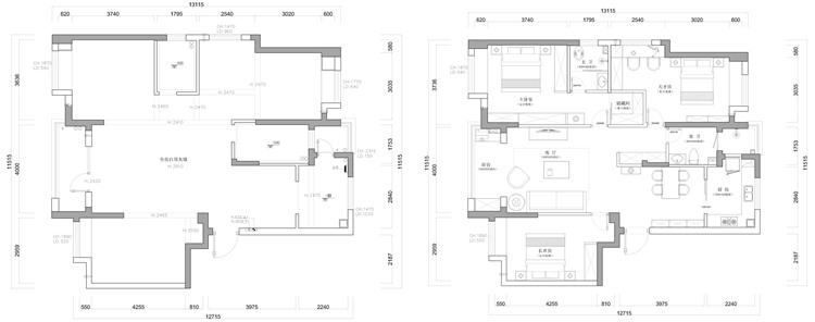
户型解析:

金桥同源三居室轻奢风格住宅的面积是135平方米 MK体育app下载,户型整体是很方正的,三个卧室大小符合居住的要求,户型内部的客厅空间足够大,厨房以及卫生间的分布都可以满足多子家庭的需要,为了确保更好的享受阳光,阳台的光线也是很充足的,户型设计达到了四面通风的要求,居住中很舒适。
客厅:

白色为主色调搭配深色的家具,不仅仅看起来简单,又可以感受到浓浓的轻奢风格 MK体育官网。
餐厅:

餐厅和洗手台连接,用餐之前洗手很方便,餐桌餐椅颜值高,餐椅使用舒适度很高 MK体育手机版。
卧室:

卧室和办公融合为一体,家长孩子互相不会影响工作以及学习 MK体育安卓版,工作完后便可以上床可以得到充足的休息。
知精准报价 避装修深坑
选择您喜欢的风格
现代轻奢
现代美式
北欧
新中式
欧式
其他
知精准报价 避装修深坑
选择房屋面积区间 (MK体育)
您的户型
两居室
三居室
四居室
五居室
六居室
知精准报价 避装修深坑
稍等片刻,您的报价正在生中......
知精准报价 避装修深坑
每日仅限前10名用户