案例简介:本案业主为90后,比较追求个性,舒适,时尚,作为婚房考虑后期的实用性, 婚房考虑后期的实用性, 北欧风格是注重人与自然,社会,与环境的有机的科学的结合,它的身上集中体现了绿色设计,环保设计,可持续发展设计的理念 MK体育,它显示了对手工艺传统和天然材料的尊重与偏爱,它在形式上更为柔和与有机,因而富有浓厚的人情味,注重功能,简化设计,线条 简练,多用明快的中性色。
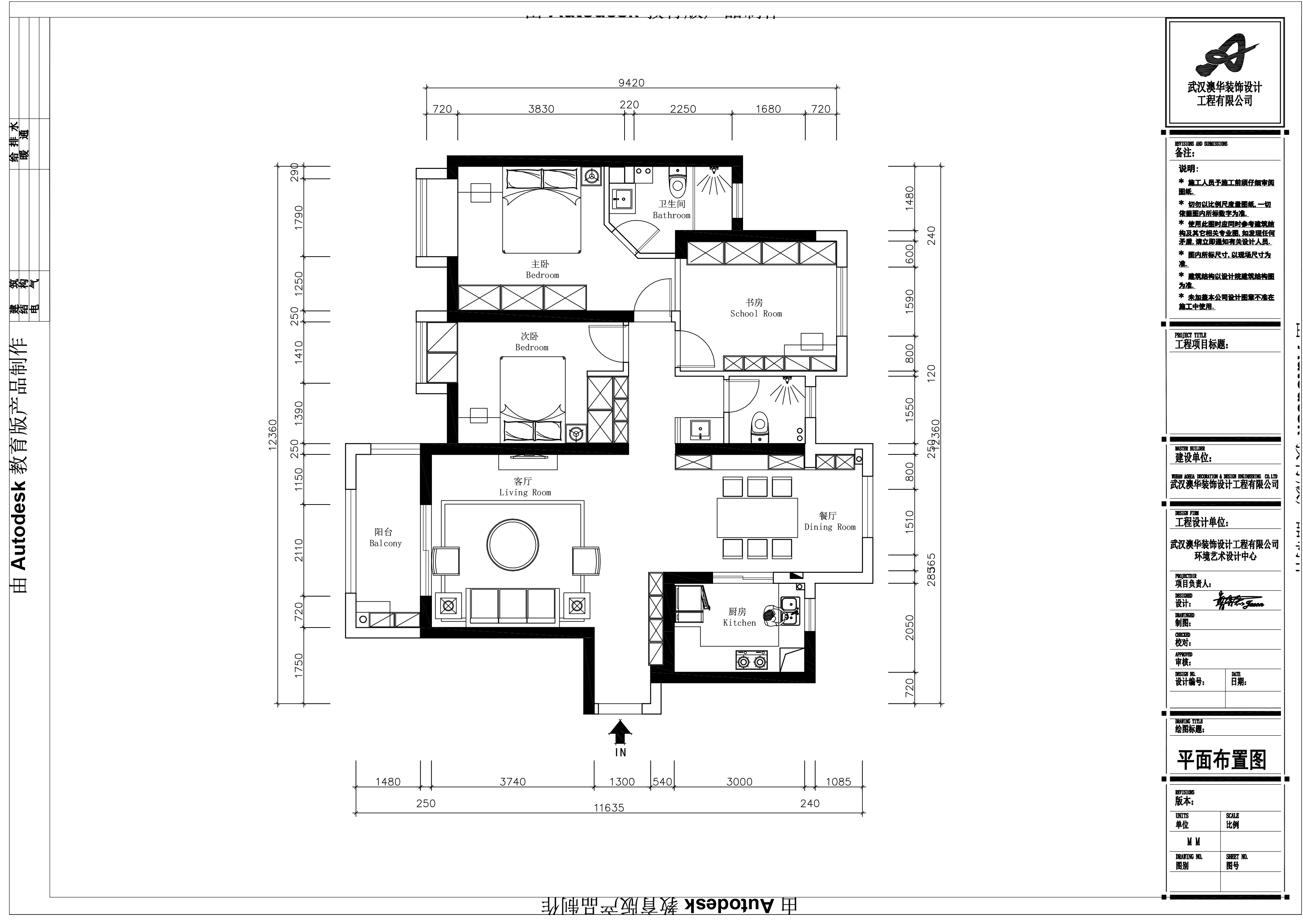
户型解析:

绿地悦澜湾这套120㎡的三居室住宅原有的户型结构十分规整,且不存在着难以设计利用的空间,因此设计师只需要做的就是进行合理的功能分区以及软装设计,根据业主的需求与想法,设计师将厨房 MK体育app下载,客厅,就餐区域设计在距离入户门较近的区域,而其他空间则打造成卧室,书房等休憩空间,以起到动静分离的作用。
客厅:

简约的白色水泥墙搭配上色彩明丽的沙发 MK体育官网,整体给人明快清新的高级氛围感。
卧室:


灰色墙面搭配上个性感强烈的挂画 MK体育手机版,满足居住者审美需求,放射形灯具简约时尚且易于打理。
书房:

与墙面融为一体的嵌入式储物架设计艺术感十足而又不失功能实用性。
知精准报价 避装修深坑
选择您喜欢的风格 (MK体育安卓版)
现代轻奢
现代美式
北欧
新中式
欧式
其他
知精准报价 避装修深坑
选择房屋面积区间
您的户型 (MK体育2025版)
两居室
三居室
四居室
五居室
六居室
知精准报价 避装修深坑
稍等片刻,您的报价正在生中......
知精准报价 避装修深坑
每日仅限前10名用户