案例介绍:“做减法”是业主的人生信条,对于新家的定义,也以“简”字贯穿,业主希望自己及家人生活在简单舒适的环境中,不被风格形式所限制,家具造型及配色历久弥新,能够展现出没有定义的简雅家居生活 MK体育。
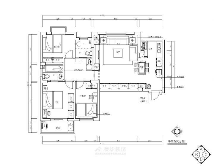
户型解析

户型整体方正,厨房靠近大门,是被不容易出现油烟问题,开放式厨房链接餐厅,并与客厅一体化衔接,令整个活动区域更加宽敞明亮 MK体育app下载,卧室集中分布,主卧带有阳台,方便晾晒衣物,各个卧室到公卫的距离不远,日常使用方便。
客厅


整体以白色为主,顶面和电视墙灯带相互糅合后,呈现出独特的视觉观感,布艺沙发围合式放置 MK体育官网,满足了家庭日常社交需求,地面增置圆形地毯,与方形吊顶对立碰撞,提升了空间的层次感,沙发左侧空间设以收纳柜面,简单的线条勾勒出时尚沉稳的力量。
知精准报价 避装修深坑
选择您喜欢的风格
现代轻奢
现代美式
北欧
新中式
欧式
其他
知精准报价 避装修深坑
选择房屋面积区间
您的户型
两居室
三居室
四居室
五居室
六居室
知精准报价 避装修深坑 (MK体育app下载)
稍等片刻,您的报价正在生中......
知精准报价 避装修深坑
每日仅限前10名用户