案例简介:现在不少年轻的女孩子都会在婚前购置一套自己的房子,这不仅仅是生活品质的保障 MK体育,也是个人能力的彰显,本案例的业主也同样不例外,作为一个年轻的95后都市白领,她有着自己对生活的领悟,且不喜欢过于花里胡哨的设计,设计师根据业主的喜好选择了简约装修风格,同时将空间进行了再规划设计,满足家里来客人时的居住需求。
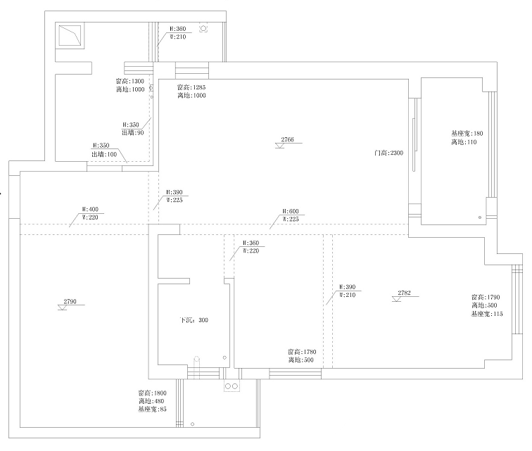
户型解析:


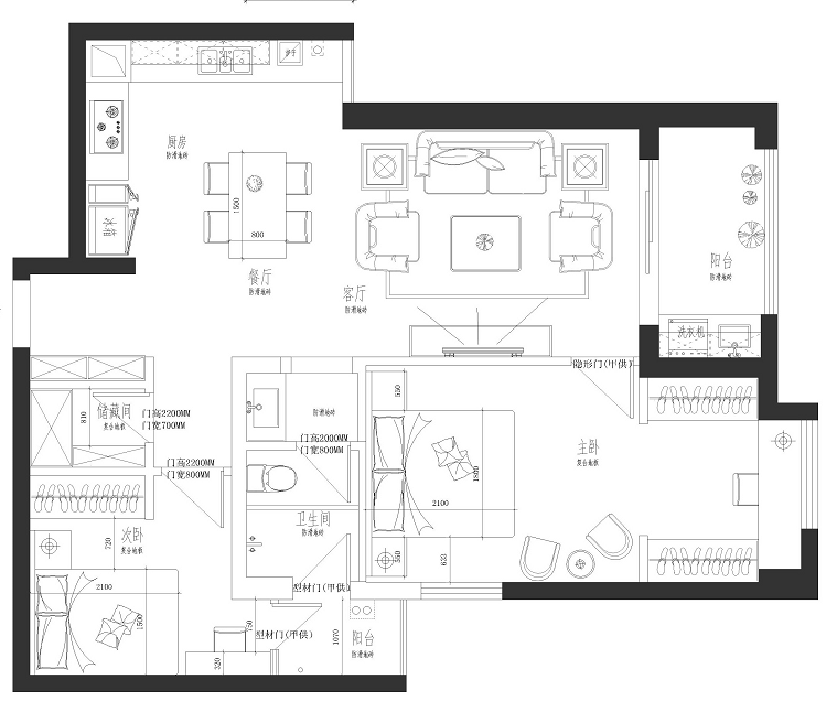
广电兰亭荣荟的这套二居室住宅面积在90㎡左右,原有的户型结构细小角落较多,加上原本房屋面积不大,因此需要对整体空间进行更加合理高效的利用,设计师在充分考虑业主使用需求的前提下 MK体育app下载,将次卧旁边的琐碎成一个迷你储物间,有效避免了空间的浪费,而开放式厨房的设计,则有效节省了室内空间的占用。
客厅:



带有磨砂质感的纯色壁纸搭配上质感柔软的布艺沙发,让整个会客区域洋溢着舒适温馨气息 MK体育官网。
餐厅:



餐厅区域与开放式的厨房设计在一块区域 MK体育手机版,有效节约了室内空间,而黑白配色的桌椅简约耐看搭配以花束,温馨而又不失情趣感。
卧室:


带有木质质感的地板贴纸,墙贴强调了空间的自然气息,蓝色床具与灰色曲线沙发则让空间多一抹柔和明亮气息 MK体育安卓版。
卫生间:


卫生间面积不大,因此整体选用素雅的色彩进行装饰,避免从视觉上造成压迫感 MK体育ios版。
知精准报价 避装修深坑
选择您喜欢的风格 (MK体育安卓版)
现代轻奢
现代美式
北欧
新中式
欧式
其他
知精准报价 避装修深坑 (MK体育)
选择房屋面积区间
您的户型
两居室
三居室
四居室
五居室
六居室
知精准报价 避装修深坑
稍等片刻,您的报价正在生中......
知精准报价 避装修深坑
每日仅限前10名用户