案例介绍:业主是一对偏爱中式传统文化的年轻人,因此在进行家装的时候希望能够融入一些中式元素,增加空间的复古典雅韵味,为了契合业主的审美,设计师选用了兼顾时尚气息与传统中式韵味美的新中式家装风格,同时借助一些复古元素的搭配使用来营造一种雅而不俗的传统韵味 MK体育。
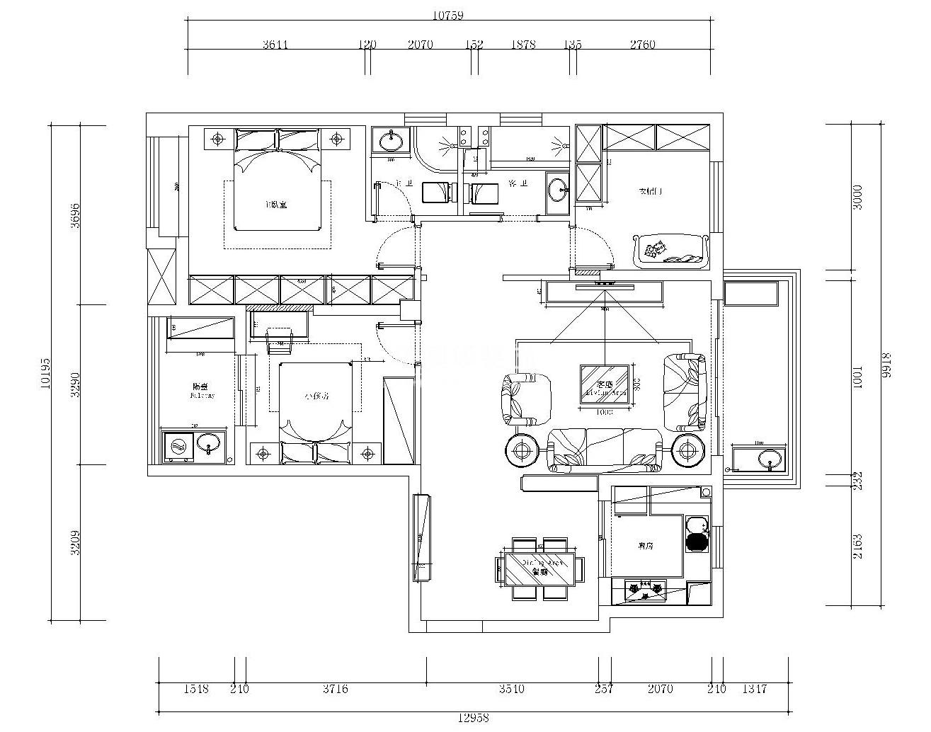
户型解析

这座位于卧龙墨水湖边的140㎡三居室住宅的结构相对比较方正规整,结构缺陷比较小,最大的空间问题在于客厅区域与就餐区域的面积不够大,因此设计师在进行规划设计的时候仅借助视觉的分隔来起到空间划分的作用,以从视觉上起到放大整个家居空间的作用,而玄关处则是借用简单的装饰设计,来缓解空间面积不大所带来的压抑感 MK体育app下载。
玄关:

由于玄关处面积并不大 MK体育官网,因此设计师在对该区域没有做过多的装饰设计,而是借助简单的禅意挂画及门框镶边设计进行装饰,在强调空间精致度的同时不造成压迫感。
客厅:

客厅区域使用了厚重感较强的深棕色电视柜,以强调中式风所特有的端庄大气感,而白色系的沙发则让空间的厚重感得到缓解,为空间增添了清新韵味 MK体育手机版。
知精准报价 避装修深坑 (MK体育手机版)
选择您喜欢的风格
现代轻奢
现代美式
北欧
新中式
欧式
其他
知精准报价 避装修深坑
选择房屋面积区间 (MK体育2025版)
您的户型
两居室
三居室
四居室
五居室
六居室
知精准报价 避装修深坑
稍等片刻,您的报价正在生中......
知精准报价 避装修深坑
每日仅限前10名用户