案例介绍:本案业主是三口之家,业主是一家企业老板,太太全职在家照顾刚上初二的女儿,在风格选择上,业主喜欢欧式风格 MK体育,希望家里多一些温馨浪漫的感觉,不仅要设计得上档次,格调大气,也要能满足家人的生活需求,营造出意蕴丰富,品质舒适的欧式感。
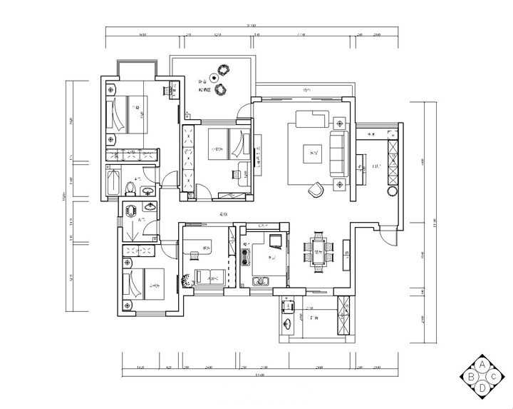
户型解析

东方世家这套136㎡三居室整体方正,从平面图上可以看到,入户玄关私密性好,客厅与餐厅开放式设计,厨房靠邻餐厅,方便传递菜品,卧室集中分布,主卧附带卫生间,次卧前往公卫的距离不长,居住舒适度高,室内动线流程 MK体育app下载,无需进行二次优化。
餐厅

黄色的活力感充斥着整个餐厅,方形吊顶配以多层次照明的设计方式 MK体育官网,令餐厅空间更有层次感,黄色皮质餐椅与空间氛围契合,营造出精致的用餐氛围。
卧室

临窗处增设了榻榻米 MK体育手机版,并利用右侧墙体设计出收纳空间,令空间立面选择更为整洁,白色衣柜层次感强,底部专门预留鞋架,并在一侧放置了换鞋凳,方便主人日常使用。
知精准报价 避装修深坑
选择您喜欢的风格
现代轻奢
现代美式
北欧
新中式
欧式
其他
知精准报价 避装修深坑
选择房屋面积区间
您的户型
两居室
三居室
四居室
五居室
六居室
知精准报价 避装修深坑 (MK体育注册入口)
稍等片刻,您的报价正在生中......
知精准报价 避装修深坑
每日仅限前10名用户