案例介绍:女业主是一家上市企业的高管 MK体育,夫妻二人都是80后,有一双可爱的子女,二人对生活品质均有较高要求,对这套300㎡的华侨城别墅有较高的装修期待,女业主青睐欧式风格,希望呈现出富丽高雅的视觉氛围,也希望设计师在进行设计时能满足不同年龄段的生活需求,为孩子提供一个足够静谧舒适的学习生活空间。
户型解析


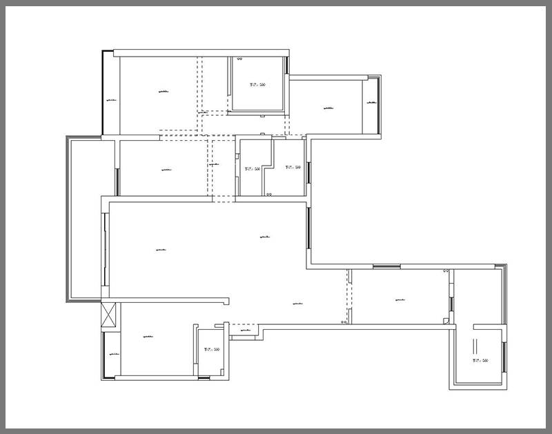
这套位于华侨城的300平方米五居室户型整体方正归整,客餐一体,横厅大,公共活动空间宽敞,主次卧带有卫生间,生活舒适度高,户型缺点在于 MK体育app下载,右下角空间呈手枪型,餐厅到厨房的距离有些狭长,拐角处容易出现采光死角,在这个部分增置了一些软装设计,缓解了空间带来的压抑之感。
客厅


客厅吊顶精雕细琢,造型上极为讲究,整体空间以香槟色为主调,白色 MK体育官网,棕色搭配其中,欧式典雅的家具和软装提升了空间层次感,步入空间,瞬间就能感受到这份华丽高贵的空间氛围。
餐厅

餐厅位于客厅一侧,菱形砖面的延伸,延续了高贵华丽的调性,左侧墙面增置了镜面装饰,令用餐氛围更加明亮精致 MK体育手机版。
卧室

卧室墙面采用对称手法设计 MK体育安卓版,镜面装饰令空间丰富不失主次,灯光的点缀下,空间显得更为宽敞明亮,背景墙中部采用软包隔音设计,为主人提供一种安静舒适的生活体验。
知精准报价 避装修深坑
选择您喜欢的风格
现代轻奢
现代美式
北欧
新中式
欧式
其他
知精准报价 避装修深坑
选择房屋面积区间
您的户型
两居室
三居室
四居室
五居室
六居室
知精准报价 避装修深坑
稍等片刻,您的报价正在生中......
知精准报价 避装修深坑
每日仅限前10名用户