案例简介:
现代风的时尚气息与美式风的浪漫风情都是业主都偏爱的 MK体育,也因此在进行该房屋装修的时候,融入了两种装修风格的设计元素,让空间在风格的碰撞中呈现出不一样的美感,让幸福生活得到更进一步的提升,而色彩的搭配选择上,则是选用了经典且保守的灰白搭配作为主基调色,以避免空间出现多种装修风格而显得过于凌乱。
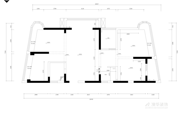
户型分析:


位于楚天都市雅园的这套120㎡三居室房屋,空间并非传统的方正格局,需要将犄角空间进行更加合理的规划设计 MK体育app下载,才能保证每一寸空间都不会被浪费,软隔断与硬隔断的搭配使用,让不同功能空间的划分有了主次之分,而儿童区域则使用了靓丽的色彩进行装饰,营造童心韵味,卧室区域则将外墙直接打通设计为落地窗,彰显空间的明亮格调美。
客厅:

客厅区域使用了经典的灰白色搭配,强调素雅洁净气息,几何放射形图案的背景墙面则为客厅注入了一抹律动气息 MK体育官网,避免空间看起来过于的素雅单调。
餐厅:

灰色的墙面搭配上山水画,为餐厅区域奠定了清新氛围 MK体育手机版,大面积的置物柜既提升了空间利用率,又可巧妙利用各类物件装饰点缀空间。
卧室:


淡暖黄色的墙面搭配上几何图形地毯,强调一种素雅柔和气息 MK体育安卓版,大面积的落地窗则确保阳光能够直接撒落在床上,让空间多一抹温暖自然美。
知精准报价 避装修深坑
选择您喜欢的风格
现代轻奢
现代美式
北欧
新中式
欧式
其他
知精准报价 避装修深坑
选择房屋面积区间
您的户型
两居室
三居室
四居室
五居室
六居室
知精准报价 避装修深坑
稍等片刻,您的报价正在生中......
知精准报价 避装修深坑
每日仅限前10名用户