<u date-time="68fbyXjj"></u><sub date-time="sDLOSxCo"></sub><sub date-time="ZN4uoozU"><small dropzone="EqLtFQa"></small></sub>
"MK体育2025版" 24小时咨询电话
027-82411111
当前位置 : 首页 > 大咖设计 > 连芬
找TA设计
专业认真
MK体育官网 - DESIGNER
"MK体育官网" 连芬 主任设计师
从业时间 : 2009 作品数量 :9套
司 : 华中超级旗舰店
业主评价 :
    • 温馨的室内氛围
    • 有创意
    • 设计出众
    • 专业技能
    • 专业技能
    • 建议很合理
    现代简约,轻奢,新中式,中古风,奶油风
    • 个人简介
    • 设计理念
    • 经典楼盘

    • 全国住宅装饰行业资深设计师

      高级室内设计师、二级建造师


      所获荣誉:

      2015年湖北十佳设计师

      2016年家具空间设计大赛最佳创意奖

      2017年武汉建筑装饰行业优秀设计师

      2018年设计新锐奖

      2019年工匠杯全国优秀设计师作品奖

      2020年武汉创意设计大赛优秀奖

      2022年红鼎奖优秀作品

      2023中国室内设计年度评选设计优秀奖

    • 一尘不染素净澄明,用平静的心灵看世界,利用淡淡的家具布局把原有的空间净化 MK体育,把气质和品位含蓄地表现出来。


    • 华侨城欢乐天际. 美的云筑. 中建星光城. 中建铂公馆. 琨御府 MK体育app下载. 昆仑御. 中建福地星城. 华侨城红坊. 金沙泊岸. 融侨滨江城.

    相关案例
    户型解析
    在施工地
    其他案例推荐
    相关案例 (MK体育平台登录)
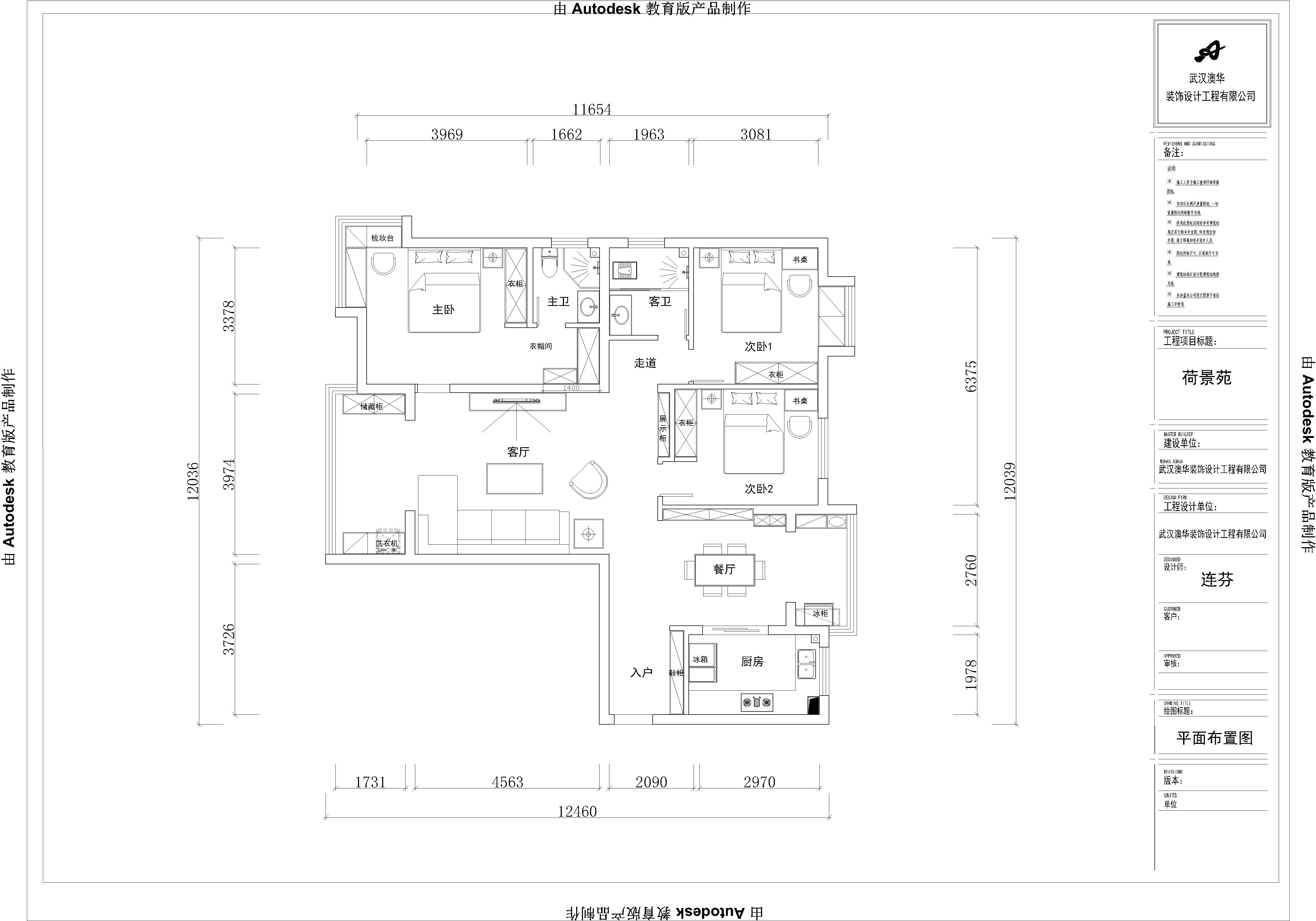
    荷景苑 128 ㎡四居室现代轻奢住宅户型解析
    四居室
    128m²
    "MK体育app下载" 轻奢风

        案例简介:本案例的业主是一对即将退休的夫妇,其中男主人偏爱品酒,且平时也会收藏一些好酒,因此在装修设计这块希望能够预留出自己的小天地 MK体育官网,而女主人公平常负责家务比较多,因此装修设计这块更看重的是整体的耐看性与是否便于打理,综合两位业主的需求,设计师对空间进行了再分割,同时在室内融入酒柜设计,以满足男主人的需求。


        户型解析:




        荷景苑这套128㎡的四居室住宅整体户型四平八稳,而空间结构上,入户处的面积相对比较宽敞,如果仅仅用来做玄关相对比较浪费,因此设计师将该空间分隔成两个区域,其中一块设计为厨房,以提升空间的利用率,主卧区域则与其中一个卫生间空间进行衔接融合 MK体育手机版,提升主人起居生活的便利度。


        玄关:


    入户.jpg

        玄关处借用远处墙面的艺术画作为点缀,同时侧面由白色橱柜进行装饰 MK体育安卓版,强调实用性。


        客厅:




        由木质与大理石材质打造的电视背景墙清新而又不失理性 MK体育ios版,镂空的设计则让空间的通透感更加强烈。


        餐厅:




        嵌入式木质酒柜满足男主人收藏酒的需求 MK体育最新版本,白色与原木色的搭配组合,则让空间整体清新自然。


    MK体育官网 - 在施工地
    • 开工
    • 前期
    • 中期
    • 后期
    • 竣工
    预约设计师
    海量行家, 抢订免费设计服务
    每日前20名申请用户, 获3D装修设计图
    MK体育2025版 - 预约设计师
    姓名*
    楼盘*
    电话*
    *为了您的权益, 您的隐私将严格保密
    推荐相关案例
    免费获取同款设计方案
    姓名*
    楼盘*
    电话*
    *为了您的权益, 您的隐私将严格保密
    预约成功
    您已报名成功, 稍后会有客服人员联系您。 您的隐私将被严格保密。
    关注二维码了解更多装修知识
    MK体育手机版 - 客户服务
    在线预约
    滴滴专车
    售后服务
    "MK体育集团官网" 联系我们
    装修咨询电话 : 027-82411111
    售后服务电话 : 027-82866788
    公司地址 : 武汉市江岸区澳门路232号金冠大厦 (MK体育官网)
    关于我们
    MK体育官网 - 友情链接 :
      MK体育 页面版权所有 yezi7357.cn

      MK体育ios版 - 算一算,您家装修需要花多少钱?

      知精准报价 避装修深坑

      01/03

      选择您喜欢的风格

      • 现代轻奢

      • 现代美式

      • 北欧

      • 新中式

      • 欧式

      • 其他

      算一算,您家装修要花多少钱?

      知精准报价 避装修深坑 (MK体育官网入口)

      02/03

      选择房屋面积区间

      • 80-100㎡
      • 100-140㎡
      • 140-200㎡
      • 200-300㎡
      • 300㎡以上

      "MK体育app下载" 03/03

      您的户型

      • 两居室

      • 三居室

      • 四居室

      • 五居室

      • 六居室

      "MK体育官网" 算一算,您家装修要花多少钱?

      知精准报价 避装修深坑

      0%

      稍等片刻,您的报价正在生中......

      "MK体育注册入口" 算一算,您家装修要花多少钱?

      知精准报价 避装修深坑

      您的完整报价已经生成

      报名成功享抢订优惠名额

      每日仅限前10名用户