24小时咨询电话
027-82411111
当前位置 : 首页 > 大咖设计 > 曹斓
找TA设计
风格设计
MK体育2025版 - DESIGNER
"MK体育安卓版" 曹斓 主任设计师
从业时间 : 2003 作品数量 :1套
司 : 总部旗舰店
业主评价 :
    • 成熟稳重
    • 方案规划合理
    • 沟通清晰易懂
    • 专业能力强
    • 设计思路明确
    • 精细化设计
    现代简约,轻奢,美式,新中式,欧式
    • 个人简介
    • 设计理念
    • 经典楼盘

    • 行业资质:


      武汉建筑装饰协会高级会员

      武汉建筑装饰协会高级建筑装饰设计师

      中国建筑装饰协会资深设计师


      荣获奖项:


      2006 武汉DK设计大赛优秀奖

      2006 全国住宅装饰装修行业优秀设计师奖

      2011 全国住宅装饰装修行业资深设计师奖

      2016 筑巢杯全国优秀作品奖

      2021 武汉第五届环境艺术大赛住宅空间优秀奖



    • “设计来源于生活,但又服务于生活之中”,以期待达到人文居住环境的和谐统一 MK体育安卓版,”。



    • 水岸星城. 复地东湖国际. 友谊国际. 世纪江尚. 中国院子联排. 梦湖香郡独栋 MK体育ios版. 千年美丽独栋.

    相关案例
    户型解析
    在施工地
    其他案例推荐
    (MK体育)
    相关案例
    "MK体育app下载" 户型解析
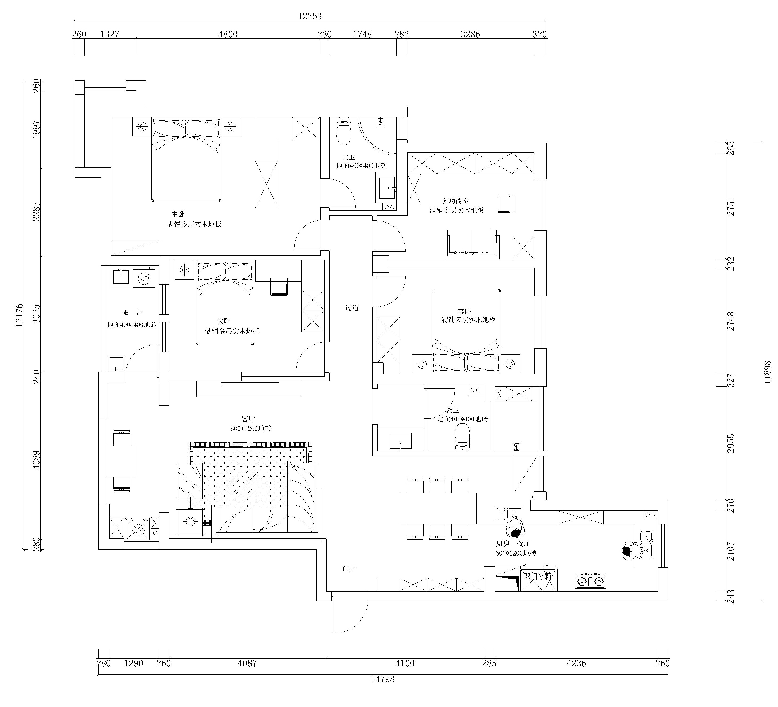
    航天双城168㎡四居室轻奢住宅户型解析
    MK体育平台登录 - 四居室
    168m²
    轻奢风

        案例简介:在设计整体选材上选用质感的材料——全抛釉地砖,多层地板,白色木门,墙面墙布,材质间相互融合对比以彰显整体空间的贵气感,更加满足其人文的功能需求,在布局上把空间合理化,让空间成为了设计的主导,设计重视简洁,让整体更加和谐,温暖舒适 MK体育最新版本,让业主在安静,遐想的空间小憩,更加关照人的内心世界。


        户型解析:


    1.jpg

        航天双城轻奢住宅的面积是168平方米,房屋的整体户型很方正,房屋做到了四面通风的设计状态 MK体育平台登录,整体室内的阳光以及通风情况都是很不错的,两个卫生间的设计满足了多子家庭的使用状态,即便是每一个人都着急外出也不会出现卫生间不够用的尴尬,而且客厅的阳台又开拓了一片新天地,具有不同的居住感受。


        客厅:


    2.jpg


        灰色的格调彰显了整体的高贵感,椅子和茶几都可以感受到轻奢的时尚体验 MK体育注册入口


        餐厅:




        白色的桌面和灰色的椅子别具一格,墙面的简单设计令餐厅看起来非常舒适 MK体育官网入口,餐厅同时还满足了入户的储物需要。


        卧室:




        卧室和工作融合成为一体 MK体育集团官网,卧室的飘窗以及床铺能够令人整个人感觉很放松。


    "MK体育" 在施工地
    • 开工
    • 前期
    • 中期
    • 后期
    • 竣工
    "MK体育注册入口" 预约设计师
    海量行家, 抢订免费设计服务
    每日前20名申请用户, 获3D装修设计图
    预约设计师
    姓名*
    楼盘*
    电话*
    *为了您的权益, 您的隐私将严格保密
    推荐相关案例
    免费获取同款设计方案 (MK体育集团官网)
    姓名*
    楼盘*
    电话*
    *为了您的权益, 您的隐私将严格保密
    预约成功
    您已报名成功, 稍后会有客服人员联系您。 您的隐私将被严格保密。
    关注二维码了解更多装修知识
    联系我们 (MK体育安卓版)
    装修咨询电话 : 027-82411111
    售后服务电话 : 027-82866788
    "MK体育注册入口" 公司地址 : 武汉市江岸区澳门路232号金冠大厦
    "MK体育ios版" 关于我们
    友情链接 :
      MK体育 页面版权所有 yezi7357.cn

      算一算,您家装修需要花多少钱?

      知精准报价 避装修深坑

      01/03 (MK体育ios版)

      选择您喜欢的风格

      • 现代轻奢

      • 现代美式

      • 北欧

      • 新中式

      • 欧式

      • 其他

      算一算,您家装修要花多少钱?

      知精准报价 避装修深坑

      02/03

      选择房屋面积区间 (MK体育)

      • 80-100㎡
      • 100-140㎡
      • 140-200㎡
      • 200-300㎡
      • 300㎡以上

      MK体育手机版 - 03/03

      您的户型

      • 两居室

      • 三居室

      • 四居室

      • 五居室

      • 六居室

      "MK体育官网入口" 算一算,您家装修要花多少钱?

      知精准报价 避装修深坑

      0%

      稍等片刻,您的报价正在生中......

      "MK体育最新版本" 算一算,您家装修要花多少钱?

      知精准报价 避装修深坑

      您的完整报价已经生成

      报名成功享抢订优惠名额

      每日仅限前10名用户