24小时咨询电话
027-82411111
当前位置 : 首页 > 大咖设计 > 史宁
找TA设计
设计独特
MK体育集团官网 - DESIGNER
史宁 主任设计师 (MK体育安卓版)
从业时间 : (MK体育安卓版) 2011 作品数量 :10套
司 : 总部旗舰店
业主评价 :
    • 沟通轻松
    • 设计有品位
    • 专业能力强
    • 工作细致
    • 设计思路明确
    • 色彩搭配新颖
    现代简约,轻奢,法式,意式风
    • 个人简介
    • 设计理念
    • 经典楼盘
    • 中国建筑装饰协会注册高级设计师 

      湖北省建筑装饰协会高级会员 

      武汉市建筑装饰协会优秀设计师

      2017年荣获室内空间设计大奖 

      2018年荣获中国建筑装饰协会“最佳青年室内设计奖”

      2018年万科金域华府长江商报设计师大赛一等奖

      2020年室内设计师大赛武汉赛区优秀设计师奖

      2021年城市样板间设计案例比赛二等奖

      2022年武汉建筑装饰行业优秀设计师

      2024年作品“华发中央首府”荣获武汉第三届空间环境艺术设计大赛住宅空间类“一等奖”


      擅长风格:


      现代简约 | 极简 | 法式复古 | 法式清新 | 宋氏美学

    • 设计来源于生活经验的积累 MK体育最新版本,用自己的美学再服务于生活。

    • 新港长江府. 奥山府. 珑悦华府. 武汉天地. 华侨城 原岸 MK体育平台登录. 光谷正荣府. 新城璞樾门第. 湾郡 北岸公馆....

    相关案例
    户型解析
    在施工地
    其他案例推荐
    "MK体育集团官网"
    "MK体育集团官网" 户型解析
    泛海国际175㎡四居室轻奢品质家居户型解析
    四居室
    MK体育ios版 - 175m²
    "MK体育" 轻奢风

        案例简介:本案例的客户是一口三家 MK体育注册入口,其中男主人是大公司的高管,他希望家居空间能够呈现静谧的舒适感,以提升自己休憩质量,设计师在与业主一家三口进行深入的沟通之后,选择了轻奢风进行软装,同时借助深色系的色彩来营造一种空间的静谧氛围,为了给孩子营造一个充满童真感的休憩空间,儿童房则借助各类幼儿化的元素进行装饰点缀,打造孩子的梦幻天堂。


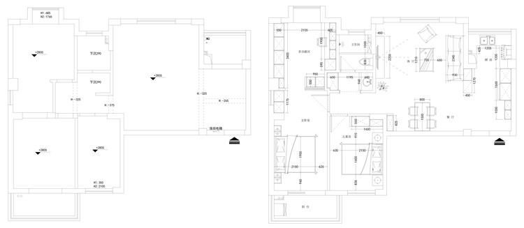
        户型解析:


    1.jpg


        这套位于泛海国际的四居室住宅建筑面积约为175㎡,户型结构虽然不算很规整,但是好在也没有各种难以设计处理的犄角空间,为了将空间更加合理的利用,设计师将房屋中相对比较突兀的区域改造成厨房,这样能够借助户型的结构将厨房油烟更好的释放出室外,同时,为了提升主人的家居质量,内部两个小空间则直接融入主卧中改造成主卧附带的卫浴空间与迷你衣帽间 MK体育官网入口


        客厅:


        大面积的核桃木搭配上深灰色的暗纹地毯,营造一种幽深的静谧感,大面积的落地窗则让城市的繁华景象成为室内装饰点缀 MK体育集团官网


        餐厅:


    3.jpg


        简约的灰色餐桌椅强调实用性 MK体育2025版,墙面处的壁画则为就餐区域增添艺术时尚氛围。


        厨房:


    4.jpg


        厨房空间相对比较狭长,因此设计师没有做过多的设计,而是强调可能性,同时借助简约的暗纹瓷砖提升厨房空间的品质格调感 MK体育


        卧室:



        灰色背景墙搭配上嵌入式衣柜,整体给人静谧柔和感,由线条组成的挂画简约清新而又不失个人色彩 MK体育app下载


    舒心苑145㎡三居室前卫风个性婚房户型解析
    三居室 (MK体育注册入口)
    "MK体育平台登录" 145m²
    前卫风

        案例简介:本案例的业主是一对年轻的95后夫妻,作为九零后的他们对于生活有着自己的感悟,他们张扬外放且追求独特与个性,因此希望设计师能够打造出一个不落俗套的个性化家居,为满足业主的喜好与审美,设计师选用前卫风进行软装,借助各类不常见的元素及色彩组合强调空间的个性感,同时借助不同线条的组合 MK体育官网,来营造空间的结构感与层次感。


        户型解析:


    1.jpg


        舒心苑这套三居室的住宅占地面积约为145㎡,整个户型结构相对比较规整,不过原有的户型结构并不能很好满足业主的使用需求,因此设计师将主卧区域与外部阳台空间直接打通,将小阳台直接纳入主卧,提升卧室区域的舒适感与采光度,为了满足业主在家办公及阅读需求,设计师将其中一个次卧改造成小书房,同时将客卫的面积向书房延伸 MK体育手机版,提升卫浴空间的占地面积,以满足正常使用需求。


        客厅:




        裸墙面搭配上结构式处理简约而又不失个性摩登感,又曲线型打造的地板搭配上圆形茶几,营造超现代的独特品味感。


        餐厅:




        可收纳式的台面有效提升空间利用率,嵌入式双开门大冰箱时尚感十足而又不失实用性。


        卧室:


    6.jpg


        浅色系色彩强调空间洁净温馨感,融入卧室的仪态空间则直接改造成梳妆台,借助天然光线满足日常梳妆打扮的需求。


        卫生间:


    151627320137.jpg


        玻璃滑门让干湿分离更为合理,大理石材料所打造的台面优雅又高级。


    银泰御华园110㎡三居室现代简约浪漫婚房户型解析
    三居室
    110m² (MK体育ios版)
    现代简约 (MK体育官网入口)

        案例简介:本案例的主人公是一对即将走入婚姻殿堂的85后夫妇,其中男主人是画家,对艺术与时尚有着较高的追求,因此希望在家中设计中能够融入一些艺术感的元素。房屋的女主人作为教师则偏爱简约的元素,如何将简约与艺术进行融合是本次的设计要点。设计师根据夫妻二人的喜好选择了现代简约风进行软装,同时借助定制式家具与细节处理来提升整个家居环境的艺术感。


        户型解析:


    1.jpg


        这套位于银泰御华园的三居室住宅建筑面积约为110平方米,原有的户型结构相对比较规整,且已经完成了基本的功能分区,因此设计师没有对空间格局进行大改动,以帮助业主节约一定的装修花销。为了提升空间的利用率与简洁感,设计师在各个空间均融入了大量的收纳式设计,以便空间更好打理。同时借助定制式的家具,为营造空间的个性感与艺术氛围。


        客厅:



        原本色搭配上白色强调空间简约整洁氛围,曲线型沙发、圆形吊顶以及圆形地毯则通过线条的变化来提升空间的独特艺术氛围。


        卧室:


    4.jpg


        大面积落地窗有效提升卧室采光,藕粉色背景墙营造温馨静谧感,搭配上色彩装饰,简约而又时尚。


        书房:


    5.jpg


        大面积的白色墙面点缀上原木色椅子,营造视觉冲击感。


        卫生间:


        以白色包围的卫生间整体呈现洁净舒适氛围,玻璃推拉门则有效起到干湿分离作用


    "MK体育官网入口"
    在施工地
    • 开工
    • 前期
    • 中期
    • 后期
    • 竣工
    预约设计师
    海量行家, 抢订免费设计服务
    每日前20名申请用户, 获3D装修设计图
    预约设计师
    姓名*
    楼盘*
    电话*
    *为了您的权益, 您的隐私将严格保密
    推荐相关案例
    免费获取同款设计方案 (MK体育最新版本)
    姓名*
    楼盘*
    电话*
    *为了您的权益, 您的隐私将严格保密
    预约成功
    您已报名成功, 稍后会有客服人员联系您。 您的隐私将被严格保密。
    关注二维码了解更多装修知识
    "MK体育安卓版" 联系我们
    "MK体育注册入口" 装修咨询电话 : 027-82411111
    售后服务电话 : MK体育app下载 - 027-82866788
    "MK体育手机版" 公司地址 : 武汉市江岸区澳门路232号金冠大厦
    "MK体育平台登录" 关于我们
    友情链接 :
      MK体育 页面版权所有 yezi7357.cn

      "MK体育平台登录" 算一算,您家装修需要花多少钱?

      知精准报价 避装修深坑

      "MK体育安卓版" 01/03

      选择您喜欢的风格

      • 现代轻奢

      • 现代美式

      • 北欧

      • 新中式

      • 欧式

      • 其他

      算一算,您家装修要花多少钱?

      知精准报价 避装修深坑

      MK体育 - 02/03

      选择房屋面积区间

      • 80-100㎡
      • 100-140㎡
      • 140-200㎡
      • 200-300㎡
      • 300㎡以上

      03/03

      您的户型

      • 两居室

      • 三居室

      • 四居室

      • 五居室

      • 六居室

      MK体育2025版 - 算一算,您家装修要花多少钱?

      知精准报价 避装修深坑

      0%

      稍等片刻,您的报价正在生中......

      算一算,您家装修要花多少钱?

      知精准报价 避装修深坑

      您的完整报价已经生成 (MK体育2025版)

      MK体育手机版 - 报名成功享抢订优惠名额

      每日仅限前10名用户