24小时咨询电话 (MK体育)
027-82411111
当前位置 : 首页 > 大咖设计 > 刘慧
找TA设计
经验丰富
DESIGNER
MK体育2025版 - 刘慧 设计总监
从业时间 : 2003 MK体育最新版本 - 作品数量 :14套
司 : 华中超级旗舰店
业主评价 :
    • 审美品位高
    • 满足设计需求
    • 里很有档次
    • 有创意
    • 配色非常美
    • 工作认真负责
    现代简约,极简风,法式,意式风,奶油风
    • 个人简介
    • 设计理念
    • 经典楼盘
    • 2002年北京室内装饰行业二级设计师证书

      2008年武汉室内设计优秀设计师证书

      2011年全国资深设计师证书

      2012年德意杯全国设计大赛优秀奖

      2015年搜狐杯全国设计大赛优秀奖

      2012年-2016武汉电视台第一房产品味空间特约设计师

      2018年武汉市优秀设计师证书

      2019年全国工匠杯武汉赛区设计大赛优秀奖

      2020年武汉第二届空间环境艺术大赛一等奖

      2021年红鼎奖全国设计师优秀作品奖

      2022年武汉建第六届住宅产业红鼎创新大赛优秀奖

      2023年(tata定制协作)住宅空间类室内设计+软装设计优秀奖

      2023年(方太电器协作)住宅空间类室内设计优秀奖

      2024年全国中部家居设计节别墅大宅标杆设计师

      武汉装饰协会高级会员

      中国建筑装饰协会高级室内设计师



    • 设计不但要引领潮流 MK体育注册入口,还要融入生活。

    • 泛海国际,新华联青年城,绿地金融国际城,中建大厦,保利中央公馆,复地东湖国际,绿地金融国际,龙湖天玺,琨瑜府,百瑞景,中建大公馆,橡树湾 MK体育官网入口,城投璞岸,碧桂园桃花源,水蓝湾香榭东沙,融侨滨江城,正荣紫阙台,金沙泊岸。

    相关案例
    户型解析
    在施工地
    其他案例推荐
    MK体育平台登录 - 相关案例
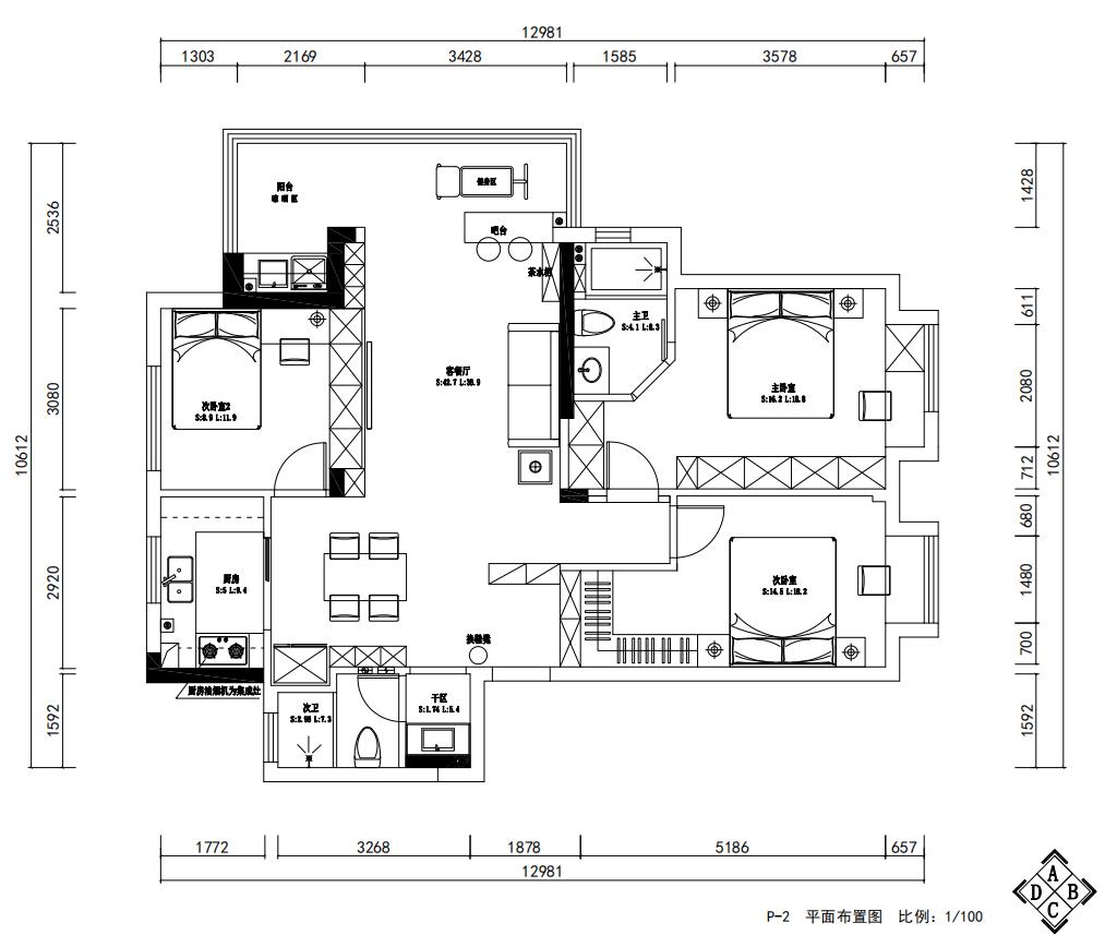
    城市大厦130㎡三居室现代风住宅户型解析
    三居室
    "MK体育平台登录" 130m²
    "MK体育最新版本" 现代黑白灰


    昏暗的光线,老旧的设施,杂乱的物品堆放 MK体育集团官网,狭小的卫生间……这些都是老房子亟待解决的问题,因此,屋主毅然决定进行全面的翻新改造,以期用全新的面貌来迎接更加高品质的生活。


    简洁 MK体育2025版,时尚,耐看,通透,是屋主对新居的首要期待,经过深入交流,我们迅速在设计理念上达成一致,决定以随性自然的黑白灰作为主色调,对空间布局进行精心重组,旨在扩大生活区域,让自由无拘的气息充盈于整个居家空间之中。





    城市大厦130㎡现代黑白灰


    城市大厦130㎡现代黑白灰


    ①入户门直面次卫门,隐私性不佳


    ②主卫局促,阳台、走道空间浪费多


    ③各个空间收纳不足,利用率低


    城市大厦130㎡现代黑白灰


    优化改造


    ①优化次卫布局 MK体育,借用厨房空间嵌入洗漱区,并调整门向,规避大门与次卫门直对。


    ②扩大主卫,借主卧空间设洗手台,分割卧室旁走道与阳台 MK体育app下载,分别融入室内空间。


    ③承重墙不动 MK体育官网,两侧定制衣柜餐边柜,增强收纳并巧妙遮挡承重柱,美化空间。




    城市大厦130㎡现代黑白灰



    城市大厦130㎡现代黑白灰


    在黑白灰的主色调下 MK体育手机版,客厅弥漫着一股纯粹而高雅的气息,这种色调凭借其强大的包容性和可塑性,勾勒出了一幅和谐而宜居的生活画卷。


    线条,作为这幅画卷的灵魂笔触,以精准而富有韵律的比例分割 MK体育安卓版,不仅强化了画面的结构美,更赋予其震撼人心的视觉冲击力,使每一处细节都跃然纸上,立体而鲜活。


    城市大厦130㎡现代黑白灰


    十字线条勾勒悬浮电视背景,强化轮廓,木色格栅点缀其间 MK体育ios版,深化空间纵深感,整体设计层次分明,尽显雅致与立体美学。


    城市大厦130㎡现代黑白灰


    将目光聚焦于沙发背景,其设计以简练线条搭配温馨的暖光灯带,仅仅几笔勾勒,便展现出非凡的艺术韵味与格调。


    城市大厦130㎡现代黑白灰


    城市大厦130㎡现代黑白灰


    过多的白色或许会显得单调,但摆放一款线条圆润的黑色沙发,不仅引领视觉下沉,还融入了静谧与安宁的氛围。一旁蓬勃生长的植物,更为空间增添了一抹清新与生机。


    城市大厦130㎡现代黑白灰


    客厅与阳台融合后,顶面梁体曾略显突兀,但通过巧妙的斜面设计,现已与顶面流畅衔接。


    笔直的线性灯则如同精致的纽带,将阳台、客厅与餐厅三个空间无缝串联,营造出连贯而和谐的视觉体验。


    城市大厦130㎡现代黑白灰


    城市大厦130㎡现代黑白灰


    城市大厦130㎡现代黑白灰


    卓越的收纳能力,是构建舒适生活的基础。


    入户门旁的两组玄关柜,为居者出门入户提供了极大的便利。它们不仅承载着收纳鞋履、衣物、包包等日常用品的功能,还能兼任餐边柜的角色,使空间利用更高效。


    城市大厦130㎡现代黑白灰


    餐桌的另一侧,矗立着真正的餐边柜。白色柜体融合黑玻酒柜,黑白之间,有藏有露,尽显简约而不失格调的生活美学,实用与美观并存。


    城市大厦130㎡现代黑白灰


    餐边柜背景选用大理石,与端景台和谐统一,其天然纹理交织冷峻质感,为用餐区域平添一份高贵与典雅,让每次用餐都成为视觉与味觉的双重享受。


    城市大厦130㎡现代黑白灰



    城市大厦130㎡现代黑白灰



    主卧空间,一袭纯白优雅铺陈,宛如初雪覆盖,静谧且圣洁。整体设计没有多余杂色侵扰,仅余纯净与安详,悄然拉开每个夜晚甜蜜梦境的序幕。


    城市大厦130㎡现代黑白灰


    阳台无缝融入室内,巨幅落地窗化作自然画框,将外界风光温柔引入,让自然光线肆意流淌,瞬间点亮室内,营造出一种既开放通透又兼顾私密性的生活享受。


    城市大厦130㎡现代黑白灰


    城市大厦130㎡现代黑白灰


    扩容后的儿童房,不仅宽敞舒适,完美契合休憩之需,更巧妙融入学习区域,激发孩子无限探索欲。同时,增设了丰富的收纳空间,让每一样物品都能井然有序。


    城市大厦130㎡现代黑白灰


    由阳台改造的学习区,既蕴含趣味性又兼备浓厚的书卷气息。学习之余,偶尔眺望远景,既护眼又让身心得到放松。


    城市大厦130㎡现代黑白灰


    一体式书柜与书桌规划出简致的收纳体系,功能与美感维持着平衡。这里是学习小天地,也是展示个人手办收藏的趣味空间,学习与兴趣爱好和谐共存。

    东湖风光174㎡四居室现代风住宅户型解析
    四居室
    "MK体育安卓版" 174m²
    现代风

    这个家,足以容纳三代共聚一堂


    开阔的布局、通透的视野、温馨的氛围、精致的细节……这些元素共同构筑了这个家的独特魅力。


    设计之初,我们细致考量居者的需求、喜好与生活方式,精心优化重组空间布局,力求实现多功能一体化。同时,巧妙打造“隐形”收纳空间,确保空间通透开阔,为居者打造舒适宜人的生活环境。




    东湖风光174㎡现代风


    户型解析


    1、入户无独立玄关,收纳稍显不足


    2、厨房空间小,做不了中西厨分区


    3、走道较为狭长,空间有些浪费


    东湖风光174㎡现代风


    优化改造


    1、入户门右侧设半高玄关柜,长辈房外定制通顶鞋柜,增强入户收纳功能,优化空间布局。


    2、整合餐厅、阳台与厨房,新布局容纳中西厨、储物空间,并与餐厅融合,实现多功能一体化。


    3、公卫内移创造拖地机空间,部分走道融入主卧套间,并借次卧走道定制储物柜,优化收纳。





    东湖风光174㎡现代风



    这个家进门的位置是没有独立玄关的,进门就是客餐厅。


    东湖风光174㎡现代风


    这里将右侧墙体延伸,将长辈房外侧定制的通顶鞋柜完全嵌入,实现“完美隐形”。


    半高鞋柜与摆件、绿植巧妙融合,共同打造出充满艺术气息的精致端景。




    东湖风光174㎡现代风


    东湖风光174㎡现代风


    东湖风光174㎡现代风


    柔和的日光透过玻璃窗,轻抚宽敞的客厅,温暖的光辉弥漫每一个角落,为居室披上宁静温暖的华裳。


    随着日光铺洒,视野无限延伸,通透的公区宛如居者内心的宽广天地。这里,静谧与喧嚣并存,既能容纳个人的沉思,也能承载全家的欢聚。


    东湖风光174㎡现代风


    东湖风光174㎡现代风


    天然石材作为地台,与悬浮电视背景及灯线精妙融合,于静谧中流露艺术韵味,巧妙平衡休闲与雅致,构筑出别具一格的生活美学空间。


    东湖风光174㎡现代风


    侧边岩板黑白交织,绿意盎然伫立其前,虚实相生间绘就一幅诗意盎然的水墨图景,赋予平凡日常诗意之美。


    东湖风光174㎡现代风


    阳台一角,黑玻书柜巧妙嵌入,与电视背景和谐相融。随手翻阅一本心仪的书籍,悠然落座于柔软的懒人沙发,尽享宁静的阅读时光。


    东湖风光174㎡现代风


    经线条与色块精心勾勒的沙发背景墙,彰显出别具一格的简约与高雅,它完美融入整体家居环境,营造出和谐统一的视觉美感。


    东湖风光174㎡现代风


    梦幻的纱帘将洗衣晾晒区隐藏,确保各功能区间互不干扰,使家居生活更静谧有序。




    东湖风光174㎡现代风


    东湖风光174㎡现代风


    改造后的餐厨,不仅空间更大,功能也更齐全。


    东湖风光174㎡现代风


    东湖风光174㎡现代风


    定制高柜嵌入冰箱,形成一体化设计,既整洁美观又实用。餐边柜兼顾西厨功能,顶部增设酒柜,为日常生活增添更多趣味与便利。


    东湖风光174㎡现代风


    餐桌旁并非仅有一面墙,实际上这里藏着隐形门,门后则是一个杂物间,家里不常用的物品都可以妥善收纳于此。




    东湖风光174㎡现代风


    东湖风光174㎡现代风

    东湖风光174㎡现代风


    无需复杂设计,深色系的半墙护墙板,就将卧室的氛围渲染得愈发宁静深邃,让人不自觉地放松身心,回归内心的平静。


    东湖风光174㎡现代风


    次卧经过改造,蜕变为时尚衣帽间,与主卧、主卫融合,共同构筑起一个奢华大套间,为品质生活增添无尽魅力与舒适。


    东湖风光174㎡现代风


    利用窗台位置定制转角办公区,墙体两侧定制满墙衣柜,实现工作与收纳的完美融合。


    东湖风光174㎡现代风


    卫浴干湿分离,采用墙地一体式铺贴设计,尽显高级质感,同时带来清透舒适的洗浴体验。


    客房.jpg


    东湖风光174㎡现代风


    毗邻阳台的房间,专为长辈休憩打造,淡雅色调营造出宁静优雅的氛围,每一寸空间都流淌着对长辈的深情关怀与深深尊重。


    东湖风光174㎡现代风


    儿童房的设计,既注重实用性也兼顾趣味性。


    东湖风光174㎡现代风


    床头背景墙选用清新的淡蓝色,营造出静谧而雅致的氛围,同时也为孩子的世界增添了童趣与梦幻的色彩。


    东湖风光174㎡现代风


    窗前设有悬浮书桌,专为孩子阅读学习而设计。书桌旁是满墙书柜,转角处采用弧形设计,有效降低磕碰风险,尽显父母对孩子细致入微的关爱。


    方园小区120㎡三居室酒店风格住宅户型解析
    三居室
    120m² (MK体育安卓版)
    MK体育最新版本 - 酒店风

        案例解析:该房为业主改善住房,男主人经常出差,比较喜欢酒店风格,女主喜欢健身,喝茶,故在客厅阳台处设计留了健身区,吧台区。该房主儿子和父母会偶而来居住,所以另外两间房都以卧室设计为主,并设置了书桌功能。虽然设计整体很简单,却可以满足自己喜好的同时也满足了一家人居住的需求。


        户型解析:


    1.jpg


        方园小区三居室酒店风格住宅的面积是120平方米,经典的三室户型两个卫生间保障了居住的便捷性。房间的唯一缺憾便是客厅是比较狭长的,不过电视墙的空间范围是很大的,完全可以满足日常中使用的需要。两个卧室距离比较近,而另外一个卧室则确保了私密性,居住的体验感很好。


        玄关:


    2.jpg


        现代的鞋柜设计满足了衣服鞋子的摆放空间,入户和玻璃之间采取了隔空玻璃的设计,既满足了隔离感又不会觉得很闷。


        客厅:




        动静结合的客厅设计效果理想,沙发椅满足了日常生活中休闲的需要。客厅阳台放入了健身器材,在家里便可以随时健身具有理想体验。


        卧室:




        卧室和书写功能融合为一体,休息之后可以完成自己的工作,床铺背景墙符合酒店风格,每一天都能够感受居住酒店的快乐。


    在施工地 (MK体育安卓版)
    • 开工
    • 前期
    • 中期
    • 后期
    • 竣工
    "MK体育官网" 预约设计师
    海量行家, 抢订免费设计服务
    每日前20名申请用户, 获3D装修设计图
    MK体育手机版 - 预约设计师
    姓名*
    楼盘*
    电话*
    *为了您的权益, 您的隐私将严格保密
    推荐相关案例
    "MK体育安卓版" 免费获取同款设计方案
    姓名*
    楼盘*
    电话*
    *为了您的权益, 您的隐私将严格保密
    预约成功
    您已报名成功, 稍后会有客服人员联系您。 您的隐私将被严格保密。
    关注二维码了解更多装修知识
    联系我们
    装修咨询电话 : 027-82411111
    "MK体育最新版本" 售后服务电话 : 027-82866788
    公司地址 : 武汉市江岸区澳门路232号金冠大厦
    MK体育注册入口 - 关于我们
    友情链接 :
      MK体育 页面版权所有 yezi7357.cn

      "MK体育平台登录" 算一算,您家装修需要花多少钱?

      知精准报价 避装修深坑

      MK体育官网 - 01/03

      选择您喜欢的风格

      • 现代轻奢

      • 现代美式

      • 北欧

      • 新中式

      • 欧式

      • 其他

      算一算,您家装修要花多少钱?

      知精准报价 避装修深坑

      MK体育安卓版 - 02/03

      选择房屋面积区间

      • 80-100㎡
      • 100-140㎡
      • 140-200㎡
      • 200-300㎡
      • 300㎡以上

      "MK体育最新版本" 03/03

      您的户型

      • 两居室

      • 三居室

      • 四居室

      • 五居室

      • 六居室

      算一算,您家装修要花多少钱?

      知精准报价 避装修深坑

      0%

      稍等片刻,您的报价正在生中......

      算一算,您家装修要花多少钱?

      知精准报价 避装修深坑

      您的完整报价已经生成

      报名成功享抢订优惠名额

      每日仅限前10名用户