24小时咨询电话
027-82411111
当前位置 : 首页 > 大咖设计 > 汪浩农
找TA设计
做事认真
DESIGNER (MK体育官网)
MK体育 - 汪浩农 设计总监
从业时间 : 2004 MK体育平台登录 - 作品数量 :9套
司 : 总部旗舰店
"MK体育2025版" 业主评价 :
    • 色彩搭配新颖
    • 专业可靠
    • 设计水平高
    • 经验丰富
    • 沟通愉快
    • 温馨的室内氛围
    现代简约,法式,新中式,中古风,意式风
    • 个人简介
    • 设计理念
    • 经典楼盘

    • 中国装饰协会高级会员

      中国建筑装饰协会高级室内设计师


      2004年武汉市第二届泽皓雅居DK设计大赛优秀奖

      2005年中国泽皓雅居杯设计大赛入围奖

      2006年荣获全国优秀设计师

      2008年中国建筑装饰协会高级会员

      2010年武汉艺博室内陈设设计白金设计师大赛三等奖

      2015年武汉十九届室内设计师技能大赛二等奖

      2016年中国高端别墅设计大赛佳作奖

      2021年武汉十佳设计师

      2022年武汉中国家装产业创新大赛红鼎奖一等奖




    • 复杂的重点是简单,简单的生活方式就是让我们放下繁杂 MK体育安卓版,丢弃成见,返璞归真,给简单的生活带来无尽的精神享受。



    • 新华尚水湾,中信泰富滨江金融城,金科城,正荣紫阙台,空军小区,世纪江尚,华发外滩首府


    相关案例
    户型解析
    在施工地
    其他案例推荐
    (MK体育注册入口)
    "MK体育手机版" 相关案例
    "MK体育集团官网" 户型解析
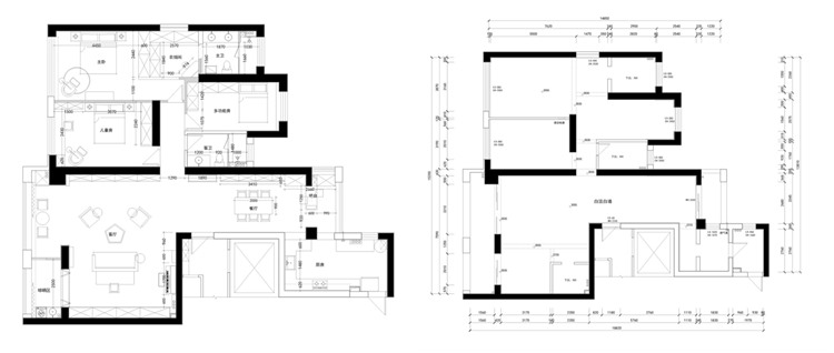
    华发外滩首府220平米四居现代风户型解析
    四居室
    220m²
    "MK体育app下载" 现代风

    案例介绍:220㎡的四房大户型采用现代轻奢风格设计,大气雅致,历久弥新,业主是一个多子家庭,喜爱具有女王气场的咖色系轻奢风,希望设计师为百变空间塑造优雅基调,注入品质与时尚,呈现出令人回味 MK体育最新版本,倍显精致的独特魅力。


    户型解析


    1.jpg


    原始户型琐碎空间比较多,为了提升空间的利用率,设计师将原始客厅的墙体打通,令餐厅与客厅一体化衔接,提升了室内的采光和通风,厨房空间也做了调整,将厨房原本带有的阳台合并到厨房内,提升了烹饪面积,卧室集中分布 MK体育平台登录,动静分离,为了满足家庭需求,设计师专门隔出一个房间,增加了卧室数量。


    客厅



    客厅以咖色系为主基调 MK体育注册入口,浪漫的配色带有女王气质,简约的线条中不失轻奢韵味,背景墙一面设计为书柜,一面设计为办公空间,别有一番风味,灰色绒质沙发与橘色单椅围合式放置,空间更具设计感,雕塑,摆件,灯具等元素,都令客厅带有复古的气息。


    餐厅


    6.jpg


    打造餐厅的精致感不需要太过复杂的装饰 MK体育官网入口,餐边柜以收纳功能为主,添置灯带装饰,即可呈现出时尚氛围,餐桌椅的造型尽量时尚一些,搭配水晶灯具,足以展现出大方气质。


    卧室


    151627320137.jpg


    卧室采用无吊顶设计 MK体育集团官网,四周添置的灯带提升了空间的浪漫感,透明柜面的衣柜更具视觉张力,令卧室空间的个性升级,背景中采用石膏线勾勒,时尚气息浓郁,凸显出业主对时尚的眼光。


    (MK体育安卓版)
    MK体育手机版 - 在施工地
    • 开工
    • 前期
    • 中期
    • 后期
    • 竣工
    预约设计师
    海量行家, 抢订免费设计服务
    每日前20名申请用户, 获3D装修设计图
    预约设计师 (MK体育集团官网)
    姓名*
    楼盘*
    电话*
    *为了您的权益, 您的隐私将严格保密
    "MK体育2025版" 推荐相关案例
    MK体育2025版 - 免费获取同款设计方案
    姓名*
    楼盘*
    电话*
    *为了您的权益, 您的隐私将严格保密
    预约成功 (MK体育最新版本)
    您已报名成功, 稍后会有客服人员联系您。 您的隐私将被严格保密。
    关注二维码了解更多装修知识
    联系我们 (MK体育手机版)
    装修咨询电话 : 027-82411111
    售后服务电话 : 027-82866788
    公司地址 : 武汉市江岸区澳门路232号金冠大厦
    MK体育2025版 - 关于我们
    友情链接 :
      MK体育 页面版权所有 yezi7357.cn

      算一算,您家装修需要花多少钱?

      知精准报价 避装修深坑

      01/03

      选择您喜欢的风格

      • 现代轻奢

      • 现代美式

      • 北欧

      • 新中式

      • 欧式

      • 其他

      算一算,您家装修要花多少钱?

      知精准报价 避装修深坑

      MK体育app下载 - 02/03

      选择房屋面积区间

      • 80-100㎡
      • 100-140㎡
      • 140-200㎡
      • 200-300㎡
      • 300㎡以上

      03/03

      您的户型

      • 两居室

      • 三居室

      • 四居室

      • 五居室

      • 六居室

      "MK体育官网入口" 算一算,您家装修要花多少钱?

      知精准报价 避装修深坑

      0%

      稍等片刻,您的报价正在生中......

      MK体育集团官网 - 算一算,您家装修要花多少钱?

      知精准报价 避装修深坑

      您的完整报价已经生成

      报名成功享抢订优惠名额

      每日仅限前10名用户