24小时咨询电话
027-82411111
当前位置 : 首页 > 大咖设计 > 曾丽
找TA设计
认真负责
DESIGNER
曾丽 设计总监 (MK体育)
从业时间 : 2003 作品数量 :34套
司 : 华中超级旗舰店
业主评价 : (MK体育手机版)
    • 独特审美
    • 设计方案有创意
    • 沟通清晰易懂
    • 有品位
    • 设计思路明确
    • 配色非常美
    极简风,法式,中古风,意式风,原木风,奶油风
    • 个人简介
    • 设计理念
    • 经典楼盘
    • 高级室内设计师

      高级陈设艺术设计师

      中国建筑协会高级会员

      第二届国际空间环境艺术设计大赛(筑巢)荣获优秀奖

      家居空间设计大赛最佳创意奖

      营造空间最佳软装陈设设计奖

      工匠杯最佳灯光设计奖

      《华夏杯》金奖


      擅长风格:

      现代风格/ 意式轻奢/侘寂/奶油风/复古/法式/新中式等等


    • 设计过程是一个否定,再否定的过程,不敢颠覆原有的构思,就无法创造出奇迹 MK体育官网


    • 百瑞景,碧桂园浅月湾,华侨城原岸,千禧园,中粮光谷祥云,世茂锦绣长江,城投瀚城璞岸 MK体育手机版,中建汤逊湖一号,正荣紫阙台。


    相关案例
    户型解析
    在施工地
    其他案例推荐
    户型解析
    百瑞景90㎡三居室简约温馨住宅户型解析
    三居室
    MK体育 - 90m²
    现代简约

        案例简介:本案例的主人公对于简约而又品质的舒适生活情有独钟,因此在进行室内装饰的时候她希望设计师不用使用过于艳丽的色彩以及各种网红化的元素,以简简单单的舒适感为主即可,设计师根据业主的需求审美以及生活习惯,为业主挑选了素雅感较为强烈的简约风作为主装修基调,舍弃大量华丽而又繁琐的元素 MK体育安卓版,利用材料原始的质感来营造一种返璞归真的自然舒适感。


        户型解析:




        百瑞景这套三居室的住宅占地面积约为90㎡,户型结构紧凑且空间浪费少,整体需进行改动的区域并不多,且能够满足业主的日常使用需求,因此设计师保留了原有的空间结构 MK体育ios版,为提升空间的利用率,提高业主生活品质,设计师将狭长的客厅中切割出一小块区域打造成迷你衣帽间,在不破坏会客区域功能使用的同时,有效提升了整个空间的合理规划性。


        客厅:


    客餐厅.jpg

        客厅借用大面积的书柜作为背景墙装饰,简约而又不失使用感 MK体育最新版本,同时还有效提升了空间的文艺氛围。


        餐厅:


    餐厅.jpg

        就餐区域借助白色与木色的碰撞营造一种自然的舒适美,镂空式的储物柜搭配上清新做旧的自然艺术挂件 MK体育平台登录,典雅而又艺术感十足。


        厨房:


    厨房.jpg

        厨房空间面积不算大,因此设计师选用了经典的“L”形设计,避免出现难以转身的情况 MK体育注册入口,同时借助大面的储物收纳设计来满足各类厨房用具的归置需求。


        次卧:


    次卧.jpg

        卧室区域借用简单的色彩来打造空间的结构感,白色与淡蓝色的搭配自然而又舒适 MK体育官网入口,同时从视觉上起到增强空间结构钢的作用。


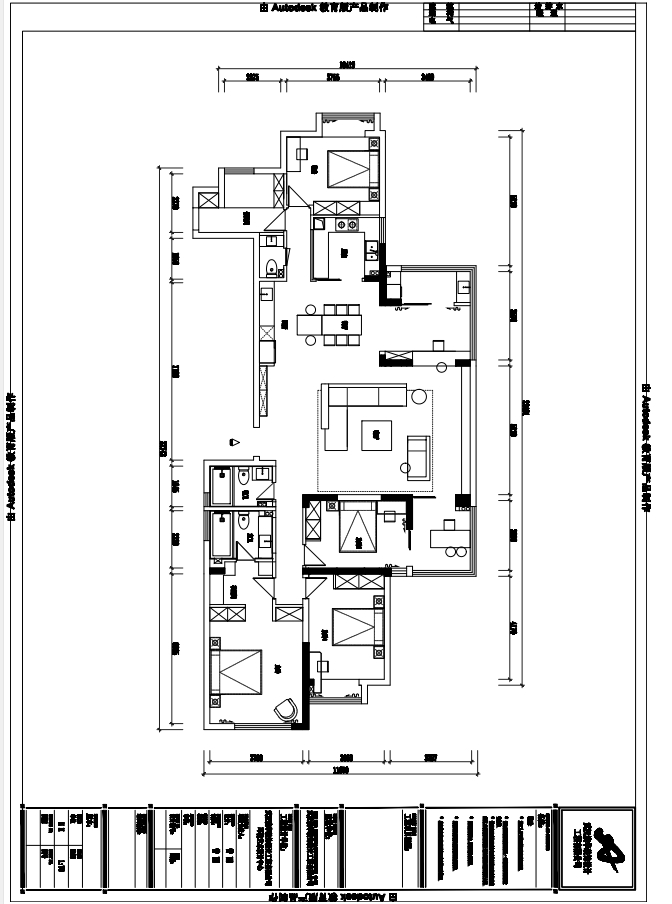
    水岸星城230㎡四居室简约清新雅苑户型解析
    "MK体育" 大平层
    230m² (MK体育官网)
    现代简约 (MK体育官网入口)

        案例简介:一个好的家装设计能够让人彻底放松身心 MK体育集团官网,更好享受闲暇时光的美好,而本案例的业主喜欢简单的元素,不喜欢各种花里胡哨的造型设计,因此希望设计师能够根据自己的审美打造出一个简约而又不简单的品质住宅,根据业主的需求,设计师选择了简约风进行室内装饰,同时利用高档材料本身的质感来提升室内环境的品质。


        户型解析:




        水岸星城这套四居室的占地面积约为230㎡,整体户型偏狭长形,这也就导致了部分过道走廊区域的面积相对比较拥挤 MK体育2025版,因此需要设计师做好各功能衔接处的细节处理,提升空间品质感,同时,借助各类软隔断提升室内空间界限感的同时有效避免环境给人压抑感,而色彩的选择上,则大面积使用了素雅清新的色系,强调温馨柔和美。


        客厅:




        木质软隔断清新又温暖,搭配上大理石背景墙,强调空间质感。


        餐厅:




        镂空嵌入式双开门大冰箱既可以满足日常使用需求,又避免了空间浪费。


        主卧:


    主卧.jpg

     

       大面积落地窗提升休憩空间采光,木质材料与白色水泥墙的组合搭配,则强调清新自然柔和美。


        次卧:


    次卧.jpg

        次卧使用灰色作为主基调色,强调柔和的沉稳气息,同时借助各类型线条的搭配强调空间结构美。


    (MK体育安卓版)
    "MK体育官网入口" 在施工地
    • 开工
    • 前期
    • 中期
    • 后期
    • 竣工
    "MK体育注册入口" 预约设计师
    海量行家, 抢订免费设计服务
    每日前20名申请用户, 获3D装修设计图
    MK体育官网入口 - 预约设计师
    姓名*
    楼盘*
    电话*
    *为了您的权益, 您的隐私将严格保密
    推荐相关案例
    免费获取同款设计方案
    姓名*
    楼盘*
    电话*
    *为了您的权益, 您的隐私将严格保密
    预约成功
    您已报名成功, 稍后会有客服人员联系您。 您的隐私将被严格保密。
    关注二维码了解更多装修知识
    "MK体育手机版" 联系我们
    装修咨询电话 : 027-82411111
    售后服务电话 : MK体育集团官网 - 027-82866788
    公司地址 : 武汉市江岸区澳门路232号金冠大厦 (MK体育手机版)
    关于我们
    "MK体育" 友情链接 :
      MK体育 页面版权所有 yezi7357.cn

      "MK体育安卓版" 算一算,您家装修需要花多少钱?

      知精准报价 避装修深坑

      01/03

      选择您喜欢的风格

      • 现代轻奢

      • 现代美式

      • 北欧

      • 新中式

      • 欧式

      • 其他

      "MK体育平台登录" 算一算,您家装修要花多少钱?

      知精准报价 避装修深坑

      MK体育2025版 - 02/03

      选择房屋面积区间

      • 80-100㎡
      • 100-140㎡
      • 140-200㎡
      • 200-300㎡
      • 300㎡以上

      03/03 (MK体育ios版)

      您的户型

      • 两居室

      • 三居室

      • 四居室

      • 五居室

      • 六居室

      算一算,您家装修要花多少钱?

      知精准报价 避装修深坑

      0%

      稍等片刻,您的报价正在生中......

      算一算,您家装修要花多少钱?

      知精准报价 避装修深坑

      "MK体育注册入口" 您的完整报价已经生成

      报名成功享抢订优惠名额

      每日仅限前10名用户